EasyManua.ls Logo

Grundig GSBSPDM4FVX - Your Refrigerator

Grundig GSBSPDM4FVX
56 pages
Print Icon
To Next Page IconTo Next Page
To Next Page IconTo Next Page
To Previous Page IconTo Previous Page
To Previous Page IconTo Previous Page
Loading...
9 / 52EN
Refrigerator / User Guide
9
EN
PT
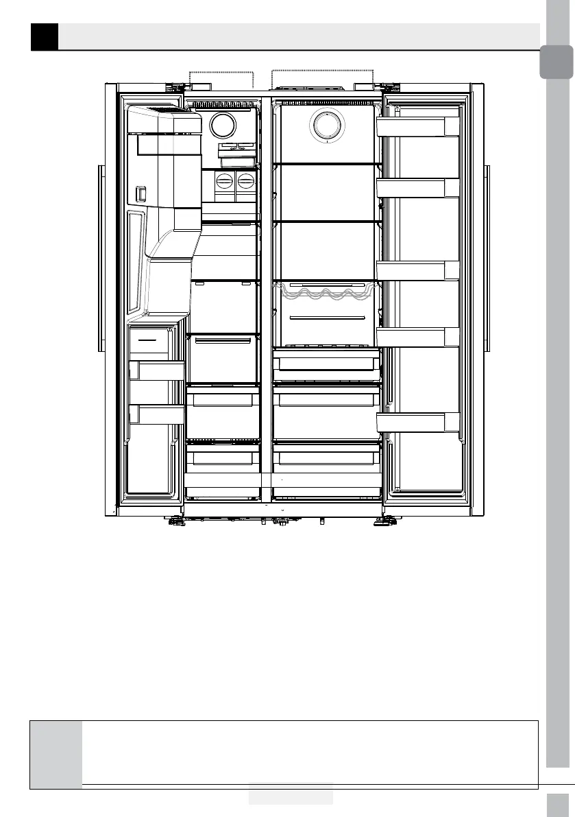
3 Your Refrigerator
C
*Optional: Figures in this user guide are schematic and may not be
exactly match your product. If your product does not comprise the
relevant parts, the information pertains to other models.
May not be available in all models
1. Freezer compartment
2. Cooler compartment
3. Cooler compartment door shelves
4. Egg Holder
5. Bottle shelf
6. Adjustable stands
7. Crispers
8. The dairy (cold storage) bin
9. Bottle shelf
2
1
*3
4
6
7
7
*8
*9
6
*3
*3
5
*10
11
12
12
13
17
*15
*14
*16
*14
10. Glass shelves
11. Fan
12. Frozen food storing compart-
ments
13. Freezer compartment glass
shelf
14. Icematic
15. Ice storage box
16. Ice-maker decorative lid
17. Freezer compartment door shel-
ves

Table of Contents

Related product manuals