EasyManua.ls Logo

Hakko Electronics FR-410 - Wiring Diagram

Hakko Electronics FR-410
36 pages
Print Icon
To Next Page IconTo Next Page
To Next Page IconTo Next Page
To Previous Page IconTo Previous Page
To Previous Page IconTo Previous Page
Loading...
33
Item No.
1
2
3
4
1 - 4
5
6
7
8
9
10
11
12
Specifications
10 qty
10 qty
24V-140W
Part No.
B1915
A1030
B1916
A5044
B2517
B1917
B5222
B5062
B5064
B5063
A5056
B1023
B1660
Part Name
Filter holder
Spring filter
Filter pipe
Ceramic paper filter (L)
Filter pipe assembly
Back holder assembly
Enclosure pipe
Joint cover
Wave spring
Movable joint
Heating element
Hose
Housing fastener
HAKKO FR-4104 parts
Specifications
Straight type
Part No.
FR4104-81
Part Name
HAKKO FR-4104
HAKKO FR-4104
①〜④
Part No.
FH410-81
Part Name
Iron holder
Specifications
with cleaning sponge
Item No.
Part No.
A1519
Part Name
Cleaning sponge
Specifications
1
Iron holder
Iron holder parts
Item No.
Part No.
599B-02
599-029
Part Name
Tip cleaner
Cleaning wire
Specifications
Optional Parts
2
1
1
2
2
1
Item No.
Part No.
C5046
Part Name
Nozzle quick changer
Specifications
with cleaning sponge
Part No.
B5228
B5230
*1
Part Name
Receptacle
Oval nozzle positioning jig
Specifications
with screw
for N61-15, 16
Optional Parts (
Nozzle quick changer)
Nozzle quick changer parts
*1If using N61-15, 16 oval nozzles, attach a oval nozzle
positioning jig to the receptacle.
1
Panhead
screw
M3×6
SEMS screw
M3 × 12 (2)
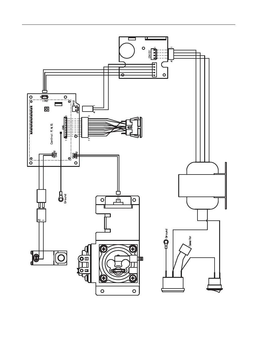
12. WIRING DIAGRAM
34
Inlet
Power
switch

Other manuals for Hakko Electronics FR-410

Related product manuals