EasyManua.ls Logo

Harmopool Hydrolyse EC20 - Installation Instructions

Harmopool Hydrolyse EC20
31 pages
Print Icon
To Next Page IconTo Next Page
To Next Page IconTo Next Page
To Previous Page IconTo Previous Page
To Previous Page IconTo Previous Page
Loading...
19
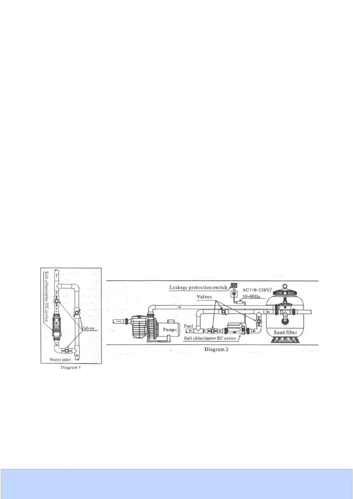
Installation instructions
1. Make sure that the pipe used for the installation is the same size as the salt
chlorinator. The nominal diameter of the chlorinator's connecting pipe is: 1.5" or 50
mm.
2. Make sure the tap for the chlorinator is closed before use.
3. Before installation, clean the pipes and the connection seam
4. The salt chlorinator must be installed with the return line to the pool and through
the water treatment line as shown in the diagram. A control valve must be installed on
the main pipe (as shown in diagram 1 or diagram 2).
5. Before installing the salt chlorinator, make sure that the water flow corresponds to
the direction indicated by the chlorinator.
6. When connecting the pipes, use only line suitable for bonding PVC
7. The chlorinator uses the external power adapter, input (AC110-220V/50Hz-60Hz),
output 18V 4A.
8. The external power adapter of the chlorinator must be connected to a power source
that has a 30mA earth leakage switch.
9. The chlorinator should be installed in a well-ventilated room to ensure proper
cooling.
Do not install in an area where moisture or rain may damage the electronic
components of the chlorinator.
During use, the chlorinator should avoid direct sunlight to prevent the aging process of
the enclosure.