EasyManua.ls Logo

Heat Controller Air Handler Series - Unit Dimensional Data

Heat Controller Air Handler Series
24 pages
Print Icon
To Next Page IconTo Next Page
To Next Page IconTo Next Page
To Previous Page IconTo Previous Page
To Previous Page IconTo Previous Page
Loading...
7
Installation, Operation & Maintenance AIR HANDLER SERIES Heat Controller, Inc.
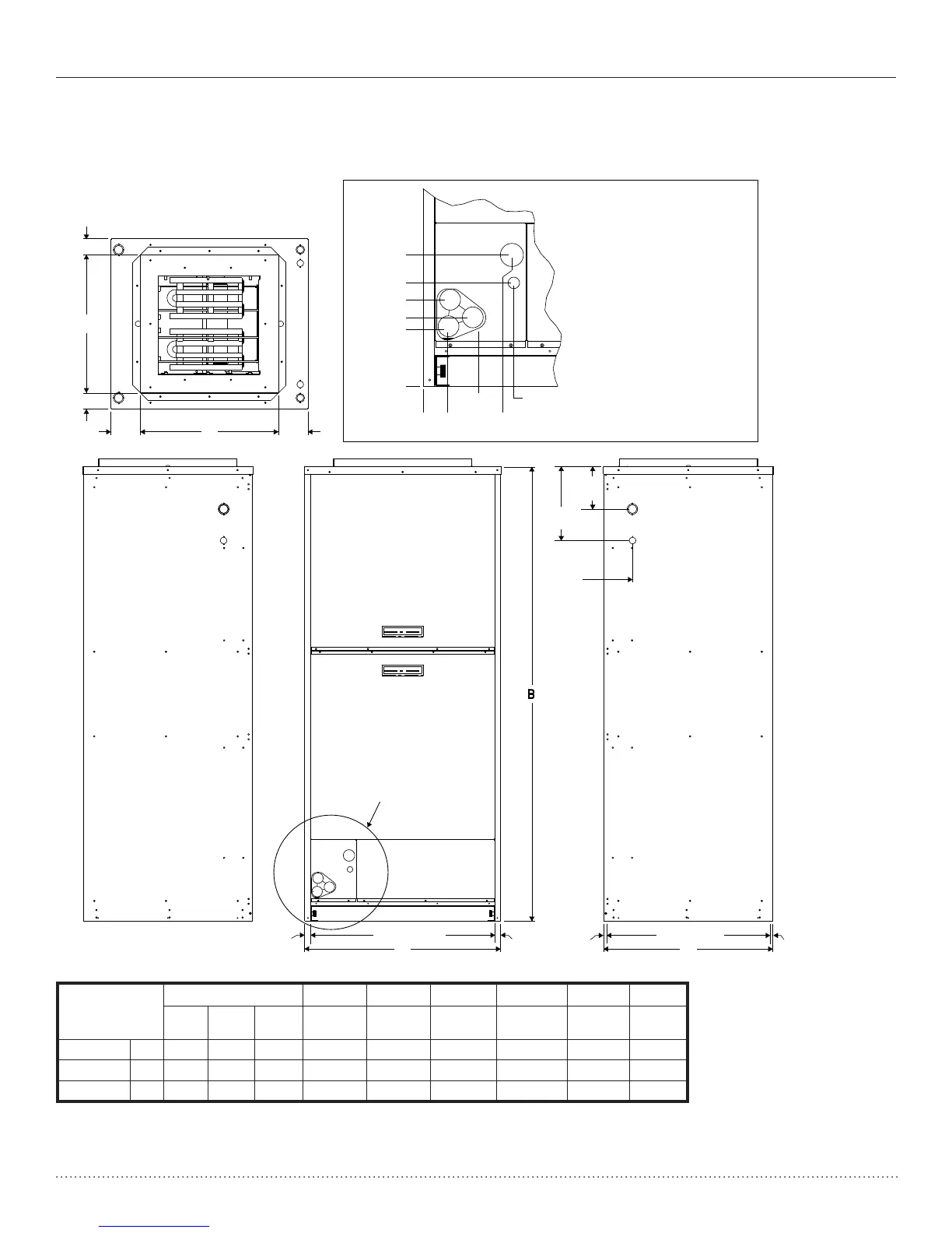
Unit Dimensional Data
0.0 1.6
[4.0]
3.6
[9.1]
5.8
[14.7]
5.9
[15.0]
0.0
3.7 [9.4]
4.5 [11.4]
5.6 [14.2]
6.7 [17.0]
8.5 [21.6]
Detail A
Scale 5/32
[0.4]
C
5.5
[14.0]
See Detail A
A
FD
G
H
E
J
R.A. Opening
0.625
[1.6]
0.625
[1.6]
R.A. Opening
0.875
[2.2]
0.75
[1.9]
8.5
[21.6]
3.6
[9.4]
Detail A
A = Primary Drain - Vertical,
Horizontal and Downflow
Configuration
B = Secondary Drain - Vertical
and Downflow Configuration
C = Secondary Drain - Horizontal
Configuration
A
B
C
Cabinet
Size
Overall Cabinet 1 2 3 4 5 6
A
Width
B
Height
C
Depth
D E F G H J
B - Cabinet in. 18.5 44.0 22.0 14.0 14.0 2.3 2.3 4.1 4.1
C - Cabinet in. 22.0 55.0 22.0 18.0 18.0 2.1 2.1 2.1 2.1
D - Cabinet in. 25.5 59.0 22.0 18.0 18.0 3.8 3.8 2.1 2.1