EasyManua.ls Logo

Hill Phoenix 05DMA - Wiring Diagrams; Wiring Diagram Overview

Hill Phoenix 05DMA
32 pages
Print Icon
To Next Page IconTo Next Page
To Next Page IconTo Next Page
To Previous Page IconTo Previous Page
To Previous Page IconTo Previous Page
Loading...
16
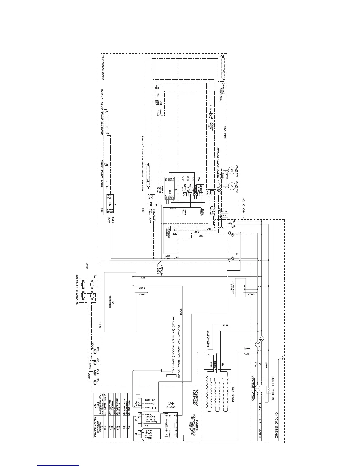
WIRING DIAGRAMS-
MODEL
O5DMA