EasyManua.ls Logo

Himoinsa STANDARD - Front View; Back View

Himoinsa STANDARD
48 pages
Print Icon
To Next Page IconTo Next Page
To Next Page IconTo Next Page
To Previous Page IconTo Previous Page
To Previous Page IconTo Previous Page
Loading...
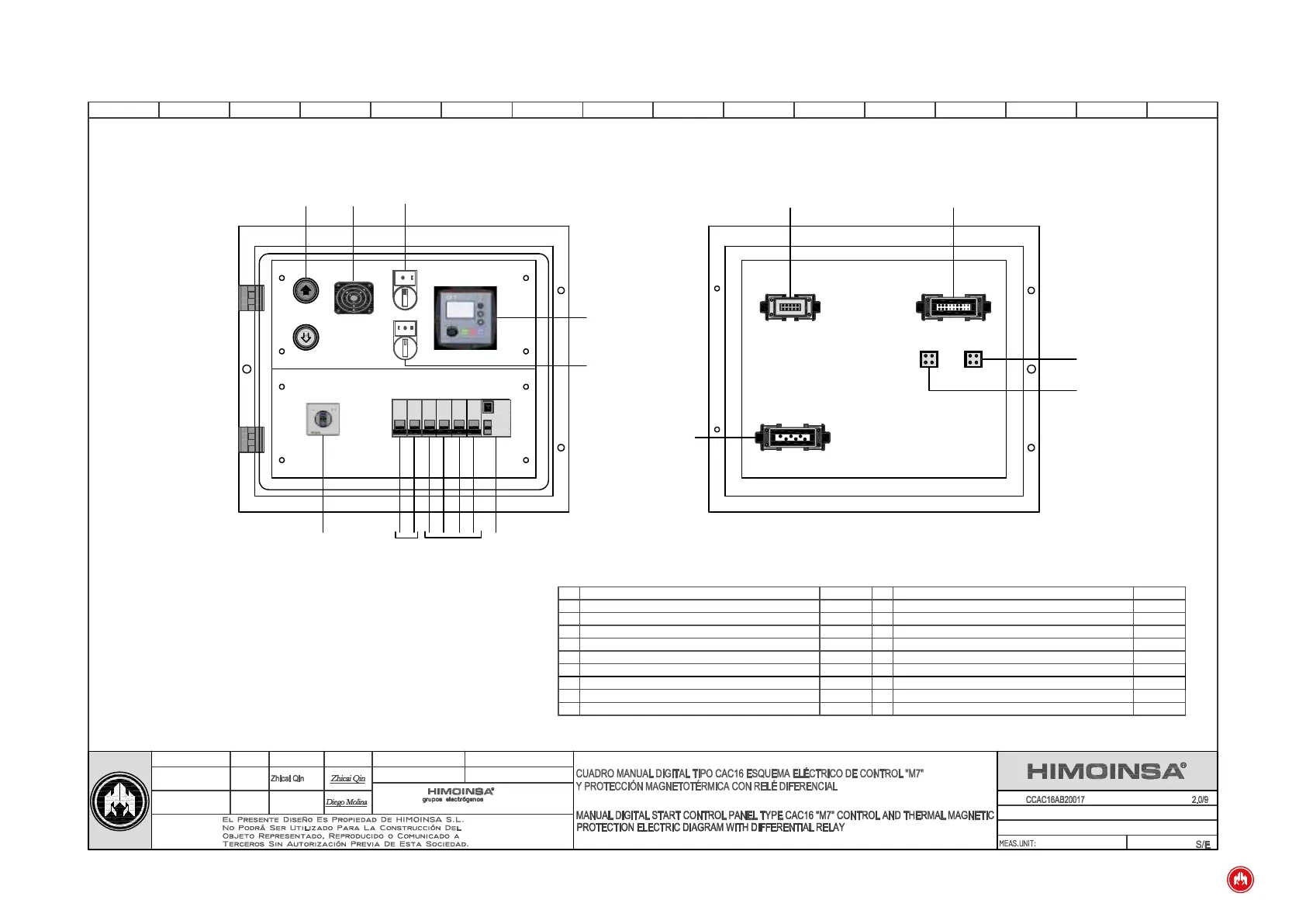
WIRING DIAGRAM | PAGE 23
FRONT VIEW BACK VIEW
www.himoinsa.com
1 2 3 54 76 8 9 10 1211 1413 15 16
Telf. 968 191 128
APPROVED:
OLD CODE:
NEW CODE:
DESIGN:
REVISED/
NAME:
DATE: SIGNATURE
DESCRIPATION:
P.:
REVISION:
SCALE:
CODE:
CTRA.MURCIA-SAN JAVIER KM 23.600 C.P. 30730 - MURCIA - ESPAÑA
05/12/16
05/12/16
mm
00
Diego Molina
CCAC16AB20017-R0
* OPTION UNDER REQUEST
1
2
3
6
5
4
4
5
3
2
1
DESCRIPCIÓN - DESCRIPTION
CODIGO-CODE
PUSH BUTTON
9
3000---
11
10
DESCRIPCIÓN - DESCRIPTION
3000---
3000---
EARTHLEAKAGE RELAY ID 25A 2P 30MA
CIRCUIT BREAKER OSMC32N1P B10A FOR BASE
CODIGO-CODE
2 PSOSITION SWITCH
CONECTOR MALE 6 POLOS - 6 POLES MALE CONECTOR
CONECTOR FEMALE 4 POLOS - 4 POLES FENALE CONECTOR
3000---
3000---
3000---
3000---
3000---
CONECTOR MALE 10 POLOS - 10 POLES MALE CONECTOR
CONECTOR FEMALE 16 POLOS - 16 POLES FEMALE CONECTOR
3000---
CONECTOR FEMALE 4 POLOS - 4 POLES FENALE CONECTOR
3000---
3036581KEY START CONTROL PANEL GOVERNOR ( M7R )
6
7
8
13
14
12
8 9
7
10
11 J5
J3
J2J1
J4
12
2600033
13
14
SELECTOR 3 POSITION THUMBED SWITCH
PLASTIC COVER APSAK4-10
8000580
8008978
* 4
* 5
3000---
3000---
CIRCUIT BREAKER CSMB1B10 1P B10A FOR BASE
HORN 12/24CIRCUIT BREAKER OSMC32N1P B10A FOR BASE
CIRCUIT BREAKER CSMB1B10 1P B10A FOR BASE
* OPCIÓN BAJO PEDIDO