EasyManua.ls Logo

Himoinsa STANDARD - Page 31

Himoinsa STANDARD
48 pages
Print Icon
To Next Page IconTo Next Page
To Next Page IconTo Next Page
To Previous Page IconTo Previous Page
To Previous Page IconTo Previous Page
Loading...
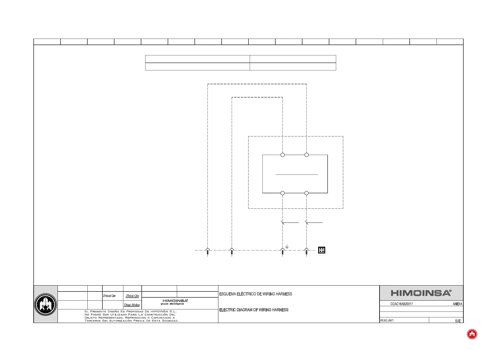
WIRING DIAGRAM | PAGE 31
2.5 mm
2
2.5 mm
2
1
ENTRADA ALIMENTACIÓN 230V
SUPPLY 230V INPUT
CARGA BATERÍA AUTOMÁTICA
AUTOMATIC BATTERY CHARGER
3/5 A 12Vcc
0230V
+
-
N1
L
L
L N1
3/5 A 24Vcc
1 2
32
J5 CONNECTOR
1 3
2
N1
L
N1
www.himoinsa.com
1 2 3 54 76 8 9 10 1211 1413 15 16
Telf. 968 191 128
APPROVED:
OLD CODE:
NEW CODE:
DESIGN:
REVISED/
NAME:
DATE:
SIGNATURE
DESCRIPATION:
Nº P.:
REVISION:
SCALE:
CODE:
CTRA.MURCIA-SAN JAVIER KM 23.600 C.P. 30730 - MURCIA - ESPAÑA
05/12/16
05/12/16
mm
00
Diego Molina
CCAC16AB20017-R0
*
OPCION BAJO PEDIDO
OPTION UNDER REQUEST