EasyManua.ls Logo

Himoinsa STANDARD - Page 35

Himoinsa STANDARD
48 pages
Print Icon
To Next Page IconTo Next Page
To Next Page IconTo Next Page
To Previous Page IconTo Previous Page
To Previous Page IconTo Previous Page
Loading...
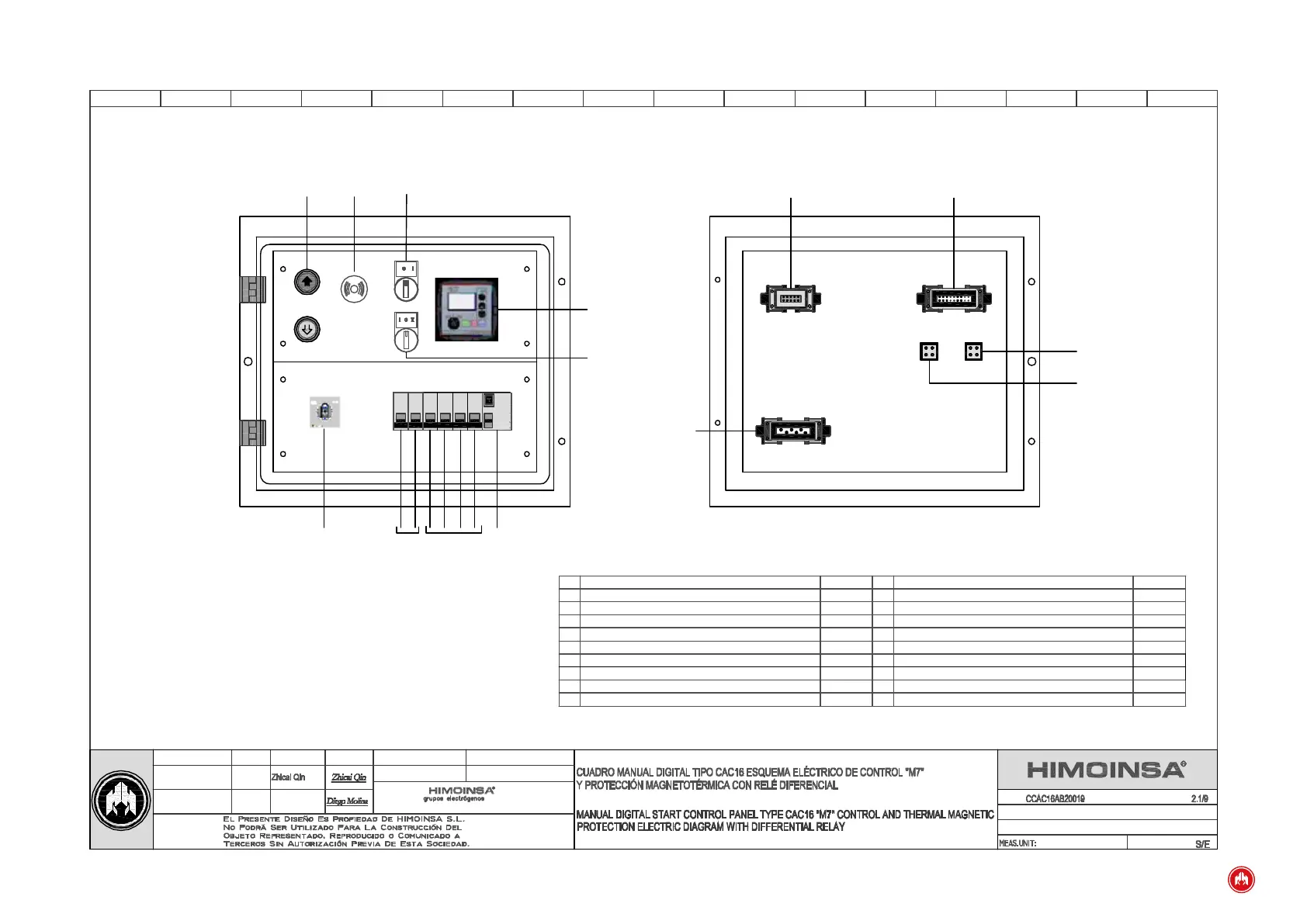
WIRING DIAGRAM | PAGE 35
FRONT VIEW BACK VIEW
www.himoinsa.com
1 2 3 54 76 8 9 10 1211 1413 15 16
Telf. 968 191 128
APPROVED:
OLD CODE:
NEW CODE:
DESIGN:
REVISED/
NAME:
DATE: SIGNATURE
DESCRIPATION:
Nº P.:
REVISION:
SCALE:
CODE:
CTRA.MURCIA-SAN J AVIER KM 23 .600 C.P. 30730 - MURCIA - ESPAÑA
28/04/17
28/04/17
mm
00
Diego Molina
CCAC16AB20019-R0
* OPTION UNDER REQUEST
1
2
3
6
5
4
4
5
3
2
1
DESCRIPCIÓN - DESCRIPTION
CODIGO-CODE
PUSH BUTTON
9
3000- --
11
10
DESCRIPCIÓN - DESCRIPTION
3000- --
3000- --
EARTHLEAKAGE RELAY ID 25A 2P 30MA
CIRCUIT BREAKER OSMC32N1P B10A FOR BASE
CIRCUIT BREAKER OSMC32N1P B2A FOR LEDS
CODIGO-CODE
2 PSOSITION SWITCH
CO NECTO R MAL E 6 PO L O S - 6 POLES MALE CONECTOR
CO NECTO R FEMALE 4 POLO S - 4 POLES FENALE CONECTOR
3000- --
3000- --
3000- --
3000- --
3000- --
CO NECTO R MAL E 1 0 PO LOS - 10 POLES MALE CONECTOR
CO NECTO R FEMALE 16 PO L O S - 16 POLES FEMALE CONECTOR
3000- --
CO NECTO R FEMALE 4 POLO S - 4 POLES FENALE CONECTOR
3000- --
3036581KEY S TART CONTROL PANEL GOVERNOR ( M7R )
6
7
8
13
14
12 8 9
7
10
11 J5
J3
J2J1
J4
12
13
14
SELECTOR 3 POSITION THUMBED SWITCH
PLASTIC COVER APSAK4-10
8000580
8008978
* 4
* 5
8000- --
3000- --
CIR CUIT BREAKER CSMB1B2 1P B2A FOR LEDS
CIR CUIT BREAKER CSMB1B10 1P B10A FOR BASE
HORN 10CM/80DB DC12V 0.8W 15-20MA
8046349
* OPCION BAJO PEDIDO