EasyManua.ls Logo

Hitachi RCIM-0.6FSN4 - RPI-(0.6-1.5)FSN4 E - Ducted Indoor Unit

Hitachi RCIM-0.6FSN4
382 pages
To Next Page IconTo Next Page
To Next Page IconTo Next Page
To Previous Page IconTo Previous Page
To Previous Page IconTo Previous Page
Loading...
3 Piping work and refrigerant charge
Refrigerant and drain hose installation
SMGB0099 rev.0 - 12/2016
116
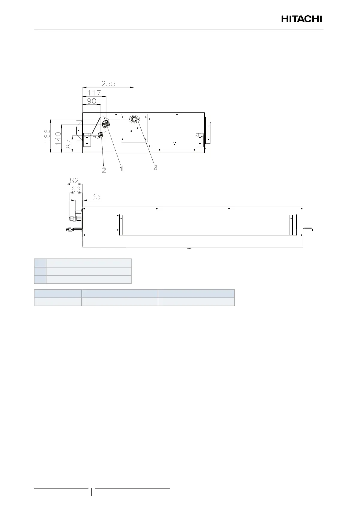
3.5.6 RPI-(0.6-1.5)FSN4E - Ducted indoor unit
Refrigerant pipe installation
The correct position for the gas refrigerant pipe connection is shown below.
1
2
3
1 Gas piping connection
2 Liquid piping connection
3 Drain piping
Models Gas pipe mm (inches) Liquid pipe mm (inches)
RPI Ø12.7 (1/2) Ø6.35 (1/4)
? NOTE
When installing the pipes, leave enough space for maintenance work in the electrical box of the unit.

Table of Contents

Other manuals for Hitachi RCIM-0.6FSN4

Related product manuals