EasyManua.ls Logo

Hitachi Set Free mini-HNRQ1 Series - Thermistor

Hitachi Set Free mini-HNRQ1 Series
187 pages
Print Icon
To Next Page IconTo Next Page
To Next Page IconTo Next Page
To Previous Page IconTo Previous Page
To Previous Page IconTo Previous Page
Loading...
146
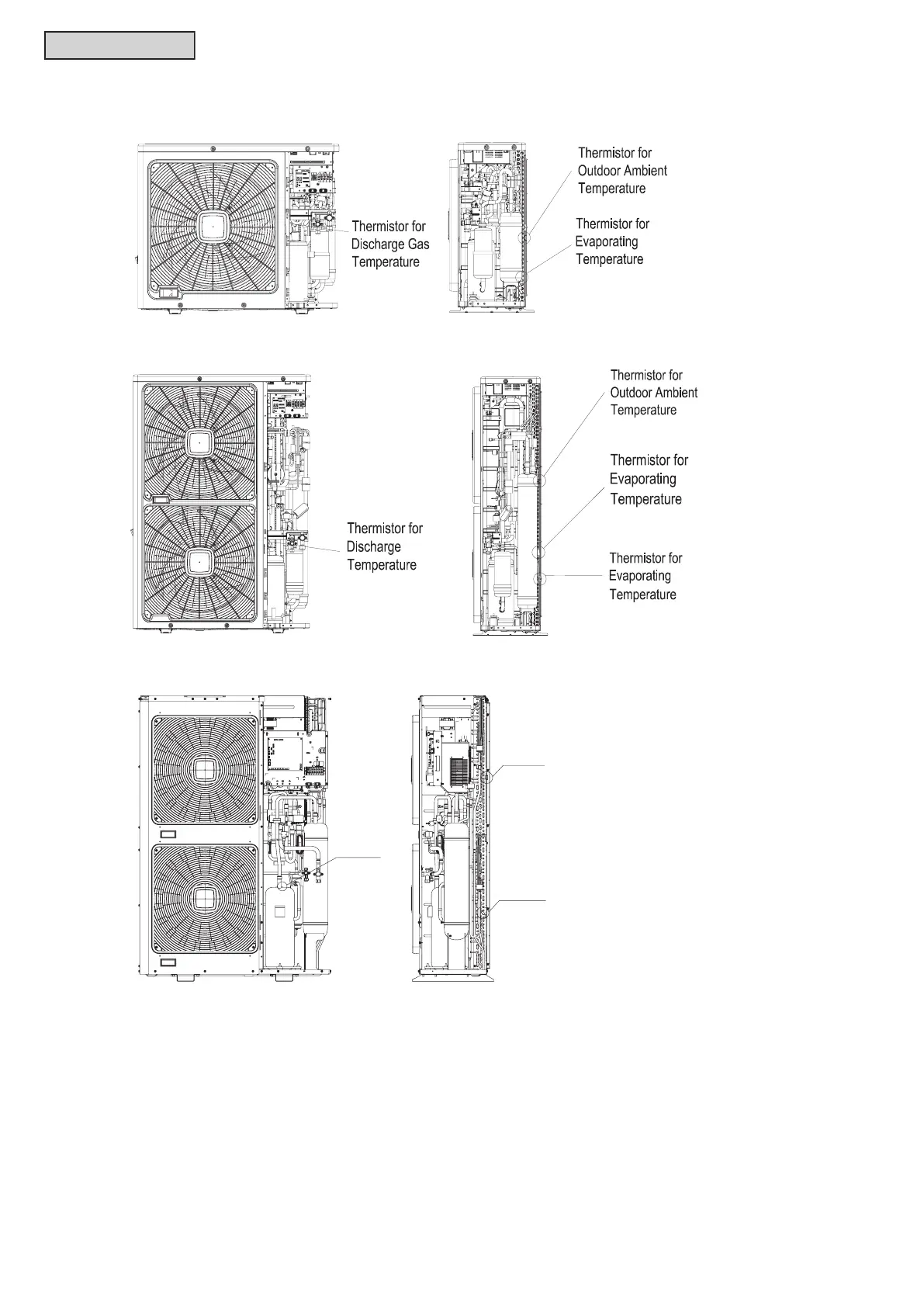
MAINTENANCE
2.4 Thermistor
(1) Position of Thermistor
Model: 3~3.5HP
Model: 4~6.5HP
Model: 7~12HP
Gas
(4-5HP)
(6-6.5HP)
Thermistor
for Discharge
Gas Tem-
perature
Thermistor
for Outdoor
Ambient
Temperature
Thermistor for
Evaporating
Temperature

Table of Contents

Other manuals for Hitachi Set Free mini-HNRQ1 Series

Related product manuals