EasyManua.ls Logo

Hitachi WM-P Series - How to Install the Pump

Hitachi WM-P Series
12 pages
To Next Page IconTo Next Page
To Next Page IconTo Next Page
To Previous Page IconTo Previous Page
To Previous Page IconTo Previous Page
Loading...
11
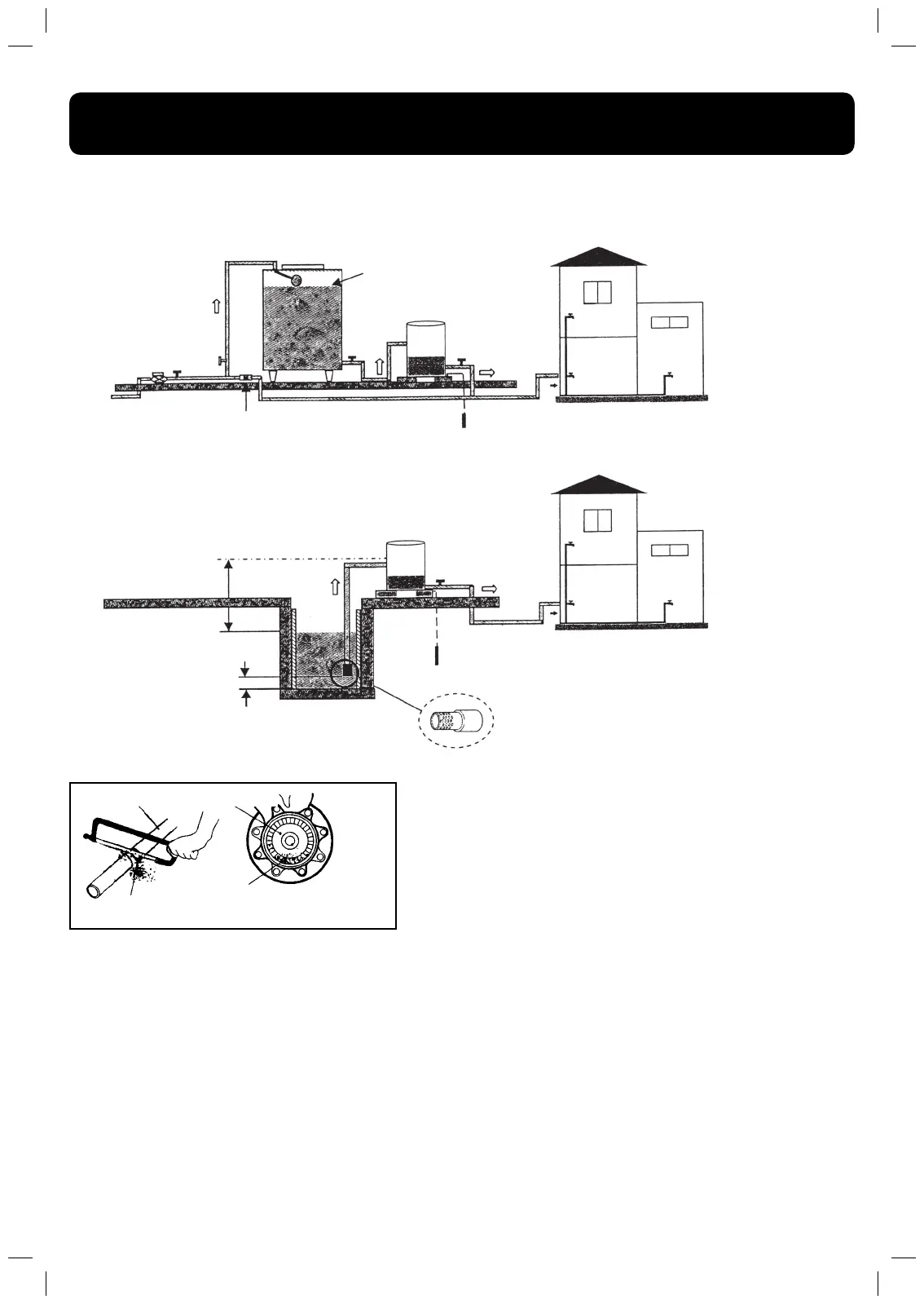
Strainer is furnished with the pump.
ตัวกรอง อุปกรณที่แถมมากับเครื่อง (Strainer)
1). Using a tool (saw blade) to cut it will produce PVC waste. การใชเครื่องมือ
(ใบเลื่อย) ทําการตัดจะมีเศษ PVC ติดอยู
2). Cleaning the PVC waste with sandpaper or simillar material. ทําความ
สะอาดเศษ PVC ดวยกระดาษทรายหรืออยางอื่นออกใหหมด
3). The cause of pump breakdown (motor lock) usually is from PVC waste
stuck in the impeller. สาเหตุที่ทําใหปมนํ้า (มอเตอรล็อค) เพราะมีเศษ PVC
เขาไปติดในตัวใบพัด
PVC pipe ทอ PVC
impeller ใบพัด
PVC waste stuck in the impeller
เศษทอ PVC จะเขาไปติดในตัวใบพัด
The water levels should
not exceed 2 m. ระดับ
นํ้าไมควรเกิน 2 เมตร
Water meter
มิเตอรนํ้า
Check Valve
เช็ควาลวกันนํ้าไหลกลับ
Valve
วาลว
Valve
วาลว
Valve
วาลว
Ground wire
สายดิน
Avoid directly sucking water from plumbing.
ควรหลีกเลี่ยงการดูดนํ้าจากประปาโดยตรง
Valve
วาลว
The pipe end’s distance from
the well bottom no less than
30 cm. ปลายทออยูหางจากกน
บอไมตํ่ากวา 30 เซนติเมตร
Ground wire
สายดิน
PVC waste
เศษทอ PVC
HOW TO INSTALL THE PUMP
วิธีการติดตั้งปมนํ้า
Put on the spring every
installation with the following
example. ใสสปริงทุกครั้ง กรณี
ติดตั้งดังตัวอยางลักษณะนี้
Remove the spring on a suction
of water deeper than 3 m. ถอด
สปริงออกทุกครั้ง กรณีที่ดูดนํ้าลึก
มากกวา 3 เมตร
Suction range from
the pump center to the
water level. ระยะดูดจาก
ศูนยกลางปมถึงระดับผิวนํ้า
Preparations for the installation ขอควรปฏิบัติกอนการติดตั้ง
1). The suction and delivering ranges can be found on the specication of the pump for each model. ระยะการดูดนํ้าและระยะการสง
ใหพิจารณาจากคุณลักษณะเฉพาะของปมนํ้าแตละรุนที่กําหนดไว (ขอมูลจําเพาะ)
2). The installation should avoid using connectors and elbows or minimizing it so as to not loose efciency of water delievery. การติดตั้ง
ใชขอตอ, ของอ จํานวนนอยที่สุด เพื่อไมใหเสียประสิทธิภาพในการสงนํ้า
3). Never adjust the pressure switch because it can damage the pump. หามปรับแตงสวิตชความดัน เพราะอาจทําใหระบบการทํางานของ
เครื่องผิดปกติ หรือไดรับความเสียหาย
4). If the pump is pumping water from a reservoir or a shallow well, there’s is no need to put on a foot valve at the pipe end, as the
pump already has a check valve. ในลักษณะการติดตั้ง ดูดนํ้าจากบอพักใตดิน หรือจากบอนํ้าตื้น ไมควรใสฟุตวาลวไวที่ปลายทอ เพราะปมมี
วาลวกันนํ้าไหลยอนกลับอยูแลว
5). The installation should include a ground wire to prevent danger in case the insulation deteriorates. การติดตั้งปมนํ้าควรติดตั้งสายดิน
ทุกครั้ง เพื่อปองกันอันตรายกรณีที่ฉนวนเกิดการเสื่อมโทรม
6). In case of breakdown during the installation or use, contact the serviceman or distributor. กรณีเกิดขอขัดของระหวางการติดตั้ง หรือปม
นํ้ามีปญหา กรุณาติดตอชางบริการ หรือตัวแทนจําหนายปมนํ้า
Precaution on laying PVC pipes ขอควรระวังในการเดินทอ PVC
In the case of pumping water from a well (should install
near the well as much as possible). กรณีดูดจากบอนํ้า
(ควรติดตั้งใกลบอนํ้ามากที่สุด)
Installation of the pump depends on suitability of the house or building using the following characteristics: การติดตั้งปมนํ้ามีหลายลักษณะ
ขึ้นอยูกับความเหมาะสมของบาน หรืออาคารที่อยูอาศัย ดังลักษณะตัวอยางดานลางนี้
In case the reservoir tank is on the oor. กรณีดูดจากถังพักนํ้าที่อยูบนดิน
3PPL067465.indd 113PPL067465.indd 11 8/2/11 9:45 AM8/2/11 9:45 AM

Related product manuals