EasyManua.ls Logo

Honeywell 3-144 - PCB Layout

Honeywell 3-144
90 pages
To Next Page IconTo Next Page
To Next Page IconTo Next Page
To Previous Page IconTo Previous Page
To Previous Page IconTo Previous Page
Loading...
Galaxy 3 Series Installation Manual
2-4
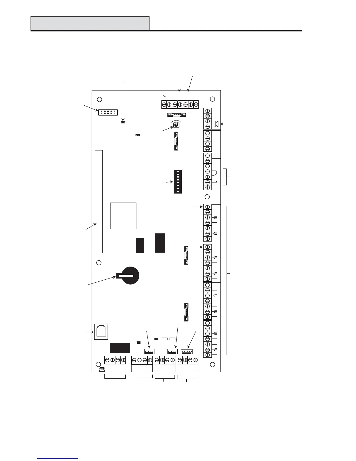
PCB Layout
PCB Layout
Figure 2-4. PCB Layout
LID
TAMP
+12V
+12V
+12V
+12V
1
2
3
4
2
AUX
TAMP
G
N
D
RX
TX
B2
A2
A1
B1
+12V
PHONE
LINE
A
B
AB
AC
MICRO
PROCESSOR
Telecom
Socket
16 on-board zones
External
loudspeaker
Leads for
lid tamper
microswitch
RS232 Port
Jumper Lead
for off-wall
tamper switch
RS485
line 1
RS485 line 2
(3-144/3-520 only)
Telecom
Connect
Battery
terminals
Expansion card
interface
Horn output
volume control
RIO 0
13
RIO 1
GND
GND
+12V
CTS
RTS
LED1(for Telecoms)
LED2 (for RS232)
LK5
LK3
+12V
4
14.5
+BAT
-BAT
F1
F2
BAT
BELL
F4
AUX1
AUX2 (3-144/3-520 only)
FLASH
SRAM
SPI
Program
Header
OFF WALL
TAMPER
BATTERY
START UP
1
2 3
4 5
6
7 8
SW3
RIO
SWITCH
Engineer socket
(RS485 Line1)
Engineer socket
(RS485 Line 2)
NOTE: Fuse AUX1 controls
RS485 line 1, RIO 0 (zones 1-8)
Fuse AUX2 controls
RS485 line 2, RIO 1 (zones 1-8)
RS232 Port socket
Memory
backup
battery
Pull-up switches
Relay
Output
N/O
C
N/C
ON
ON
NOTE: Zones 1-8 (RIO 0 line 1)
Zones 1-8 (RIO 1 line 1 (switch SW3-8 OFF))
OR
Zones 1-8 (RIO 1 line 0 (switch SW3-8 ON))
1
2
0V
3
4
0V
RIO 0
5
6
0V
7
8
0V
1
2
0V
3
4
0V
RIO 1
5
6
0V
7
8
0V
F3
3-144/3-520 only

Table of Contents

Related product manuals