EasyManua.ls Logo

Honeywell Galaxy Dimension GD-264 - PCB Layout

Honeywell Galaxy Dimension GD-264
306 pages
To Next Page IconTo Next Page
To Next Page IconTo Next Page
To Previous Page IconTo Previous Page
To Previous Page IconTo Previous Page
Loading...
Galaxy Dimension Installer Manual
2-2
PCB Layout
PCB Layout
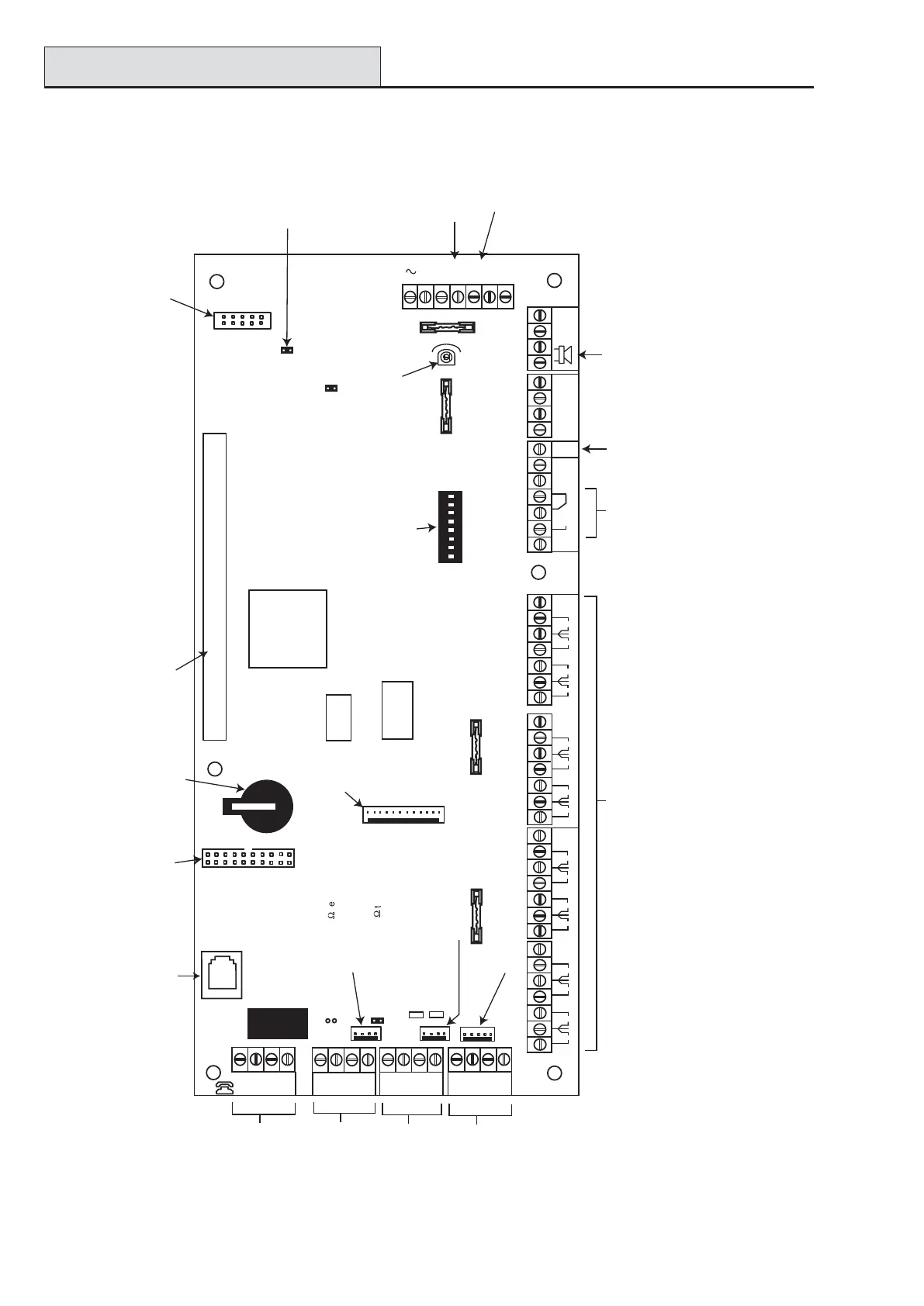
Figure 2-2. PCB Layout
LID
TAMP
+12V
+12V
+12V
+12V
1
2
3
4
2
AUX
TAMP
G
N
D
RX
TX
B2
A2
A1
B1
+12V
PHONE
LINE
A
B
AB
AC
MICRO
PROCESSOR
Telecom
Socket
16 on-board zones
External
loudspeaker
Leads for
lid tamper
microswitch
RS232 Port
Jumper Lead
for off-wall
tamper switch
RS485 line 1
RS485 line 2
Telecom
Connect
Battery
terminals
Expansion card
interface
Horn output
volume control
RIO 0
13
RIO 1
GND
GND
+12V
CTS
RTS
LED1(for Telecoms)
LED2 (for RS232)
LK5 RS485 line 1, 680
9
termination
LK3 RS485 line 2, 680
9
termination
+12V
4
14.5
+BAT
-BAT
F1
F2
BATT
AUX3
F4
AUX2
FLASH
RAM1
SPI
Program
Header
OFF WALL
TAMPER
BATTERY
START UP
1
2 3
4 5
6
7 8
SW3
RIO
SWITCH
Engineer socket
(RS485 Line1)
Engineer socket
(RS485 Line 2)
NOTE: Fuse AUX1 controls
RS485 line 1, RIO 0 (zones 1-8)
Fuse AUX2 controls
RS485 line 2, RIO 1 (zones 1-8)
Fuse AUX3 controls an independent
12V output which can be used for a
communicator or screw.
RS232 Port socket
Memory
backup
battery
Pull-up switches
Relay
Output
N/O
C
N/C
ON
NOTE: Zones 1-8 (RIO 0 line 1)
Zones 1-8 (RIO 1 line 1 (switch SW3-8 OFF))
OR
Zones 1-8 (RIO 1 line 0 (switch SW3-8 ON))
1
2
0V
3
4
0V
RIO 0
5
6
0V
7
8
0V
1
2
0V
3
4
0V
RIO 1
5
6
0V
7
8
0V
F3
SKT2
Trigger
Header
LK2
LK4
Debug
Header
AUX1
AUX3

Table of Contents

Other manuals for Honeywell Galaxy Dimension GD-264

Related product manuals