EasyManua.ls Logo

Honeywell Galaxy Dimension GD-264 - Galaxy Dimension and 2-Way Audio; Introduction; Audio Interface Module

Honeywell Galaxy Dimension GD-264
306 pages
To Next Page IconTo Next Page
To Next Page IconTo Next Page
To Previous Page IconTo Previous Page
To Previous Page IconTo Previous Page
Loading...
Galaxy Dimension Installer Manual
3-13
Audio Control
Galaxy Dimension and 2-Way Audio
Introduction
The Galaxy Dimension allows multiple audio channels to be linked to the intruder system in order to provide
audio verification following an alarm activation. This will allow sound from the area of the alarm activation to
be transmitted to the Alarm Receiving Centre with the alarm signal. This can be recorded audio captured at
the time of the activation as well as live audio. Depending on the set-up, it may be possible for the operator at
the receiving centre to talk back to the site. An Audio Interface Module is required to enable audio on the
Galaxy. This allows up to two audio channels to be connected. If further channels are required, the audio
system can be expanded using the MUX modules. Each alarm group on the Galaxy can have one audio
channel assigned to it.
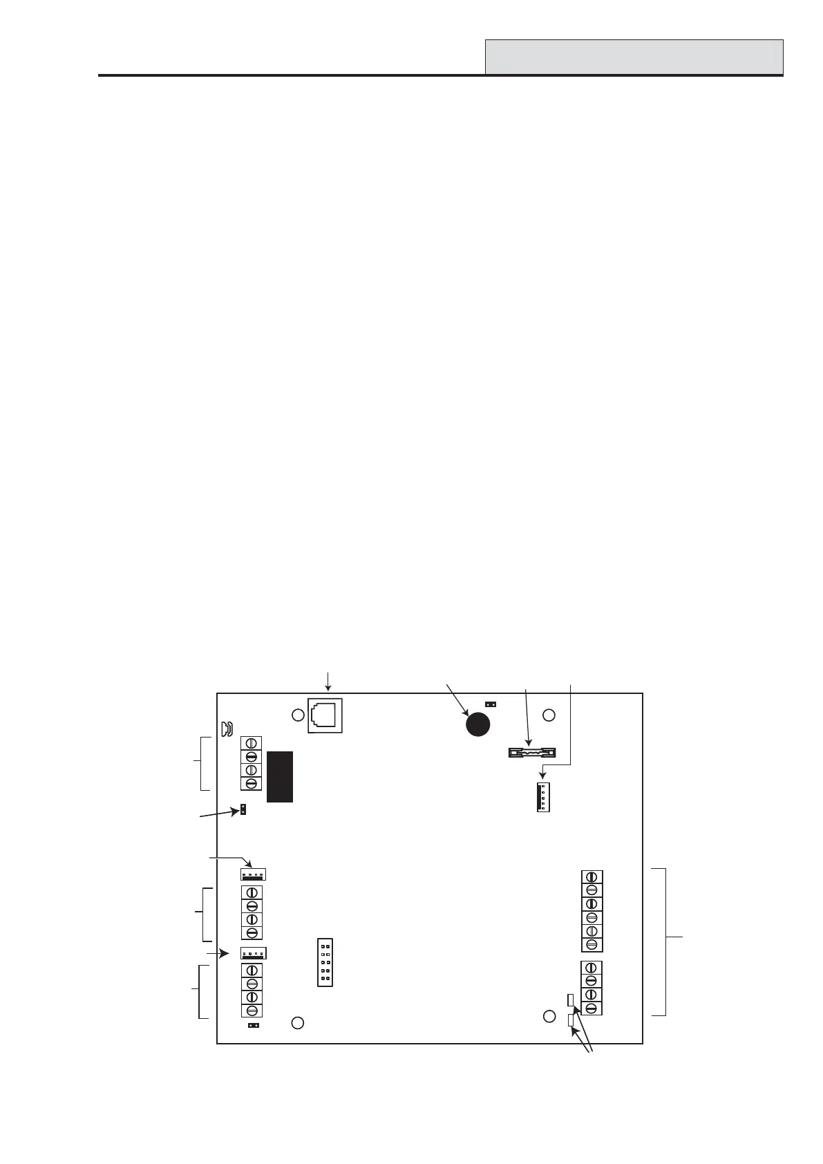
Audio Interface Module
The Audio Interface Module is connected to the Galaxy RS485 line to allow the panel to control the audio
function and connected to the PSTN line to allow it to transmit the audio signals to the Alarm Receiving Cen-
tre.
For expansion using MUX modules, the Audio Interface Module has connections for a high speed digital
audio bus in order to connect the MUX modules. Up to three speaker-mic devices, such as the TP800, can
be connected to each audio channel.
The Audio Interface Module acts as the master to a dedicated Audio RS485 line on to which 8 off-board
Mux Modules can be connected.
Figure 3-6. Interface PCB
PHONE
LINE
A
B
AB
Telecom
Socket
Telecom
Connect
SKT1
Debug Header
LK4
LK3
GND
+12V
GND
SPARE
AUDIO
A
B
A
B
GALAXY
PL3
PL6
CMD 2
TMP 2
SPK 2
MIC 3
GND
+4.5V
CMD 1
TMP 1
SPK 1
MIC 1
LK2
F1
PL2
Jumper lead
RS485
termination
Engineer Header
Audio Bus
RS485
Audio
Bus
Engineer Header
RS485 line
Galaxy
RS485 line
Off-wall Tamper
microswitch
Fuse for
+4.5V
Audio Channel
Terminals (2)
Audio Expansion
Header
Diagnostic
LED's
SW3
NOTE: Audio Expansion
Header is not currently
used - it is for future
product development.

Table of Contents

Other manuals for Honeywell Galaxy Dimension GD-264

Related product manuals