EasyManua.ls Logo

Honeywell Heating Controller SDC - Page 46

Honeywell Heating Controller SDC
64 pages
Print Icon
To Next Page IconTo Next Page
To Next Page IconTo Next Page
To Previous Page IconTo Previous Page
To Previous Page IconTo Previous Page
Loading...
Operation SDC / DHC
46 EN2H-0220GE51 R1111
Pos: 41 /156-Hon eywell/ Bedienung /Kopier en_von_He izkre isen @ 1\m od_12076 4594497 8_6.d oc @ 9735
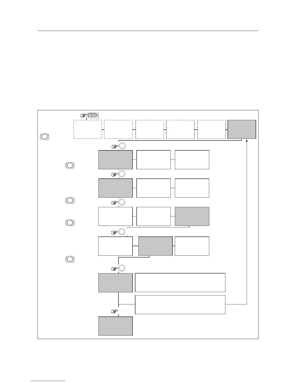
Copying heating circuits
Heating circuits cannot be copied to hot-water circuits since they
have different cycle temperatures: If a heating circuit is selected
as the source circuit, the hot-water circuit can no longer be called
up as the target circuit. The hot-water circuit as the source circuit
is also the target circuit. In this case, only programs of the hot-
water circuit are copied among one another if they were enabled
in the "System Parameter" menu.
Source circuit
MC -2 P3
Select
copy function:
Select
source circuit:
Source circuit
HC
Select
source circuit
program:
Select
target circuit:
Target circuit
HC
1)
Select
target circuit
program:
Copy:
Copy
-OK-
Copy additional heating circuits
if necessary
Program P1 (direct heating circuit) =
Program P2 (mixed heating circuit 2)
Acknowledge:
Exit:
Basic display
1)
HC MC-1 MC-2 DHW
Default
time
Copy
circuit
Source circuit
HC P1
Source circuit
MC -1
Source circuit
MC -2
Source circuit
MC -1 P2
Target circuit
MC -1
Target circuit
MC -2
Target circuit
MC -2 P3
Target circuit
MC -2 P1
Target circuit
MC -2 P2
NOTE

Related product manuals