EasyManua.ls Logo

Honeywell TC Series - Connection Diagrams for TC 3

Honeywell TC Series
55 pages
To Next Page IconTo Next Page
To Next Page IconTo Next Page
To Previous Page IconTo Previous Page
To Previous Page IconTo Previous Page
Loading...
TC · Edition 08.17 21
Function
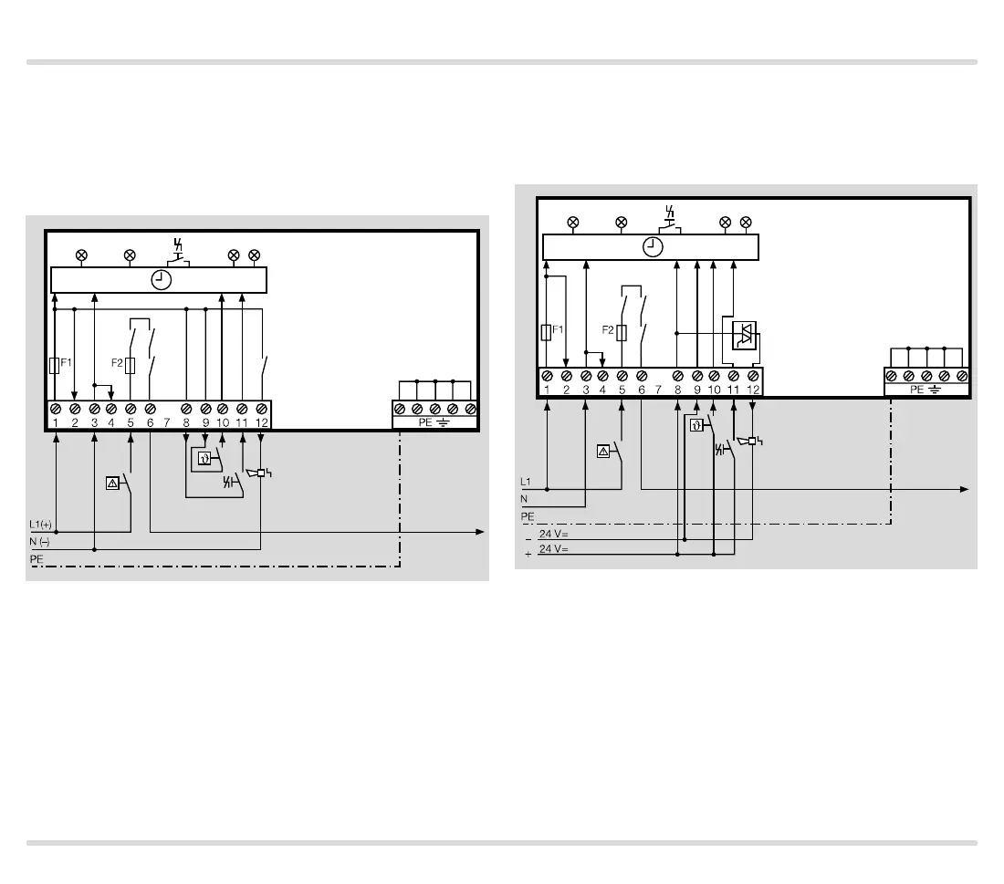
3.1.2 Connection diagrams for TC 3
TC 3..W/W, TC 3..Q/Q or TC 3..K/K
Mains voltage = control voltage
24 V DC, 120 V AC or 230 V AC,
see page 37 (Selection).
OK
TC 3
Remote reset by applying control voltage to terminal 11
or via a floating contact between terminals 8 and 11.
TC 3..W/K or TC 3..Q/K
Mains voltage: 120 V AC or 230 V AC
Control voltage: 24 V DC,
see page 37 (Selection).
OK
TC 3
Remote reset by applying control voltage (+24 V) to ter-
minal 11.

Table of Contents

Related product manuals