EasyManua.ls Logo

HotSpring PLS - Volt Permanently Connected Models

HotSpring PLS
44 pages
Print Icon
To Next Page IconTo Next Page
To Next Page IconTo Next Page
To Previous Page IconTo Previous Page
To Previous Page IconTo Previous Page
Loading...
Page 11
Page 11
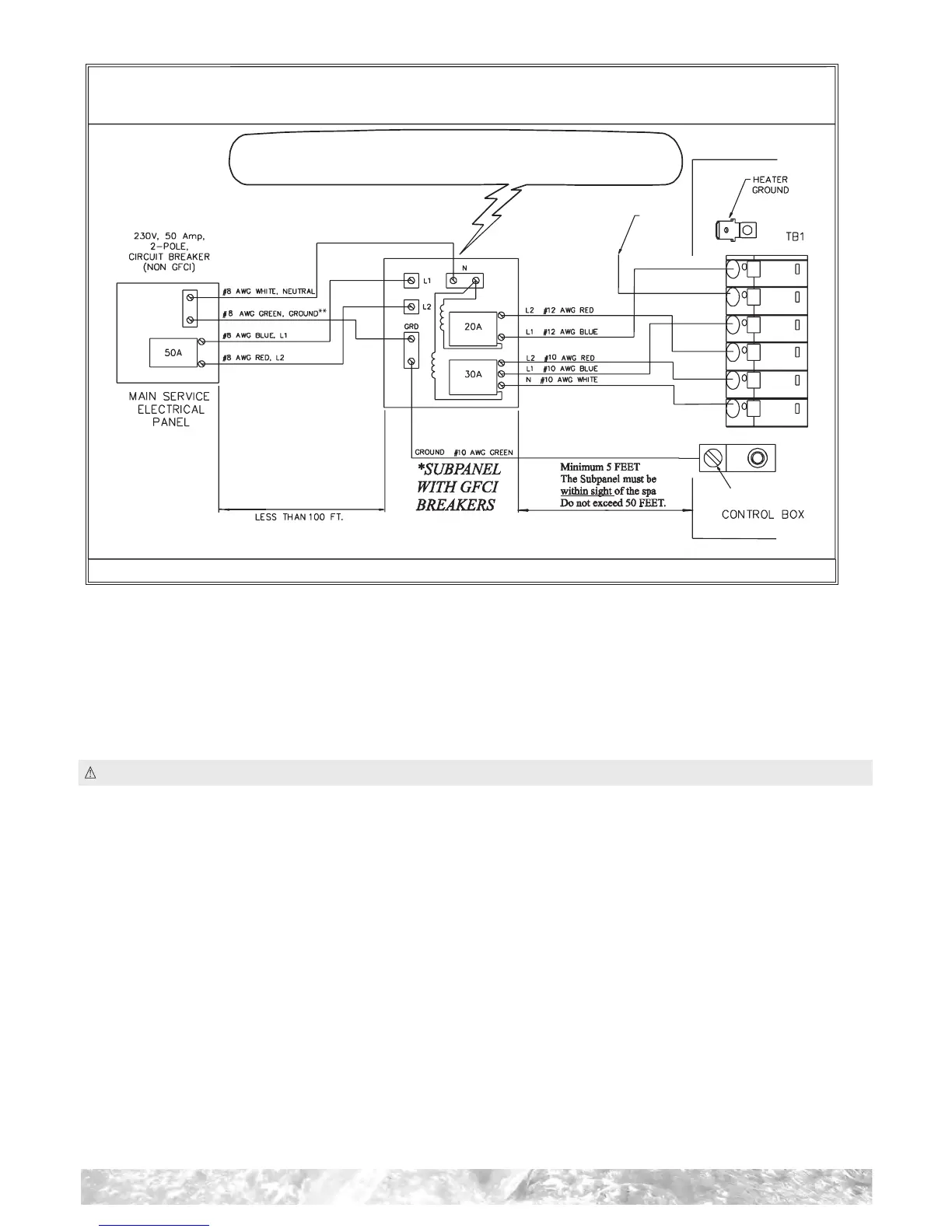
System Ground Terminal
GRD
WARNING!
THE EXACT PHYSICAL LOCATION OF THE TERMINALS ON THE GFCI BREAKER
WILL VARY BETWEEN MANUFACTURERS. CONNECTING THE HOT WIRE TO THE
NEUTRAL TERMINAL WILL CAUSE IRREVERSIBLE DAMAGE TO THE CONTROL BOX.
** Refer to NEC 250-122 (table)
*
PROVIDED WITH HOT TUB.
NOTE: ALL WIRING SHOULD BE COPPER.
NOTE: The wire connections to GFCI breakers are for reference only. Always ensure the white neutral wire is connected to the load neutral of the 30 amp breaker.
1
2
H1
3
4
1
5
FA C TO RY
W IR ED
H EATER
Limelight
Hot Tubs
230 volt permanently connected models
NOTE: If both breakers immediately trip, verify that the #10 AWG WHITE neutral wire is connected from TB-1 terminal 5 to the N (load neutral)
terminal of the 30 amp subpanel breaker. Each breaker should be tested prior to each use. Here’s how:
1. Push theTEST” button on each GFCI breaker, and observe it click OFF.
2. Wait 30 seconds, then push the breaker switch to the OFF (down) position (to ensure that it has completely disengaged), then push the
breaker switch to the ON (up) position. If you don't wait 30 seconds, the hot tub’s control panel may flash four lines on and off try again.
If any of the GFCI breakers fails to operate in this manner, your hot tub may have an electrical malfunction, and you may be at risk of electrical
shock. Turn off all circuits and do not use the hot tub until the problem has been corrected by an authorized service agent.
WARNING: Removing or bypassing any GFCI breaker will result in an unsafe hot tub and will void the hot tub’s warranty.
IMPORTANT: Should you ever find the need to move or relocate your Limelight hot tub, it is essential that you understand and apply these
installation requirements. Your Limelight hot tub has been carefully engineered to provide maximum safety against electric shock. Remember,
connecting the hot tub to an improperly wired circuit will negate many of its safety features.
NOTE: Long wiring runs may require larger-gauge wire than stated.
Electrical Requirements

Table of Contents

Related product manuals