EasyManua.ls Logo

HP M750 series

HP M750 series
678 pages
To Next Page IconTo Next Page
To Next Page IconTo Next Page
To Previous Page IconTo Previous Page
To Previous Page IconTo Previous Page
Loading...
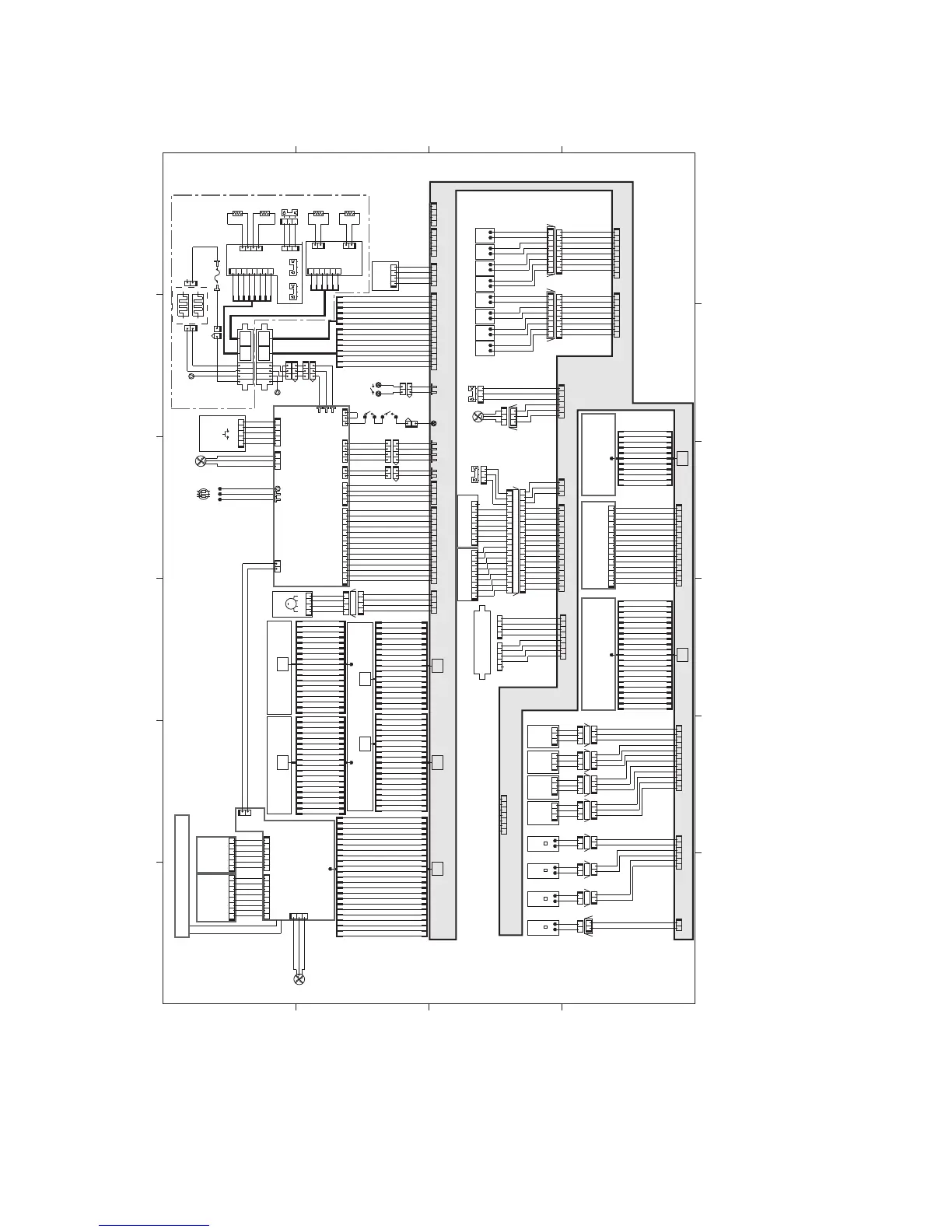
General circuit diagram
Figure 3-43 General circuit diagram (1 of 2)
A
65 4 3
B
C
D
V42+
V
42
+
D
N
G
DNG
X
R
TS
C
X
TTSC
KLCSTSC
V3.3+
J733DH
12345
J733DA
87654321
J192
1234
J733DB
1234567
8
432154321
DNG3MREHT
DNG2MREHT
DNGS
V3.3+
LH
U
F
2
P
OO
L
1POOL
I
H
SI
A
H
DNGMREHT
N
EP
O
R
ES
U
F
)R-BUS(3MREHT
)M-BUS(2MREHT
0NIAGDR
1N
I
A
G
D
R
DNG
V5+
DELBTI
DNG
1NIAGLBDR
0NIAGLBDR
POTBTI
V5+
12345
J302
54321
J1001
4321
J304
YBTSV3.3+
DNG
DNG
R4
2
+
1234
J25
DEL_WSP
SMRRUC_RSF
NOETOMER
EKUMI
H
S
XOREZ
2DLR
1DLR
1DRSF
2DRSF
FFO/NOWS
NORWP
KCOLNAF
REWOPNAF
NO_OTUA
Control panel
USB
1234 56
J2J1
87654321
DNG
DNG
+D
-D
SUBV
DNG
OPF
DNG
V
3.
3
_P
F
V5_PF
DNG
S
CP
F/
KLCPF
IPF
J305ICB
J303ICB
123456
12345678
ICB
PSW LED
F
FON
WS
O
DNG
V3.3+
R21+
NDG
J304
J301
+12U
12
2
1
FM3
J142
123
Formatter fan
GND
/FAN3LK
FAN3PWM
1234567
J191
J31J32
DC controller PCA
Fuser
Formatter
Low-voltage power
supply ass’y
TB2
TB1
FU1
J5003M
J5003F
MT2
J5001F J5002F
H2
H1
12
21
21
2
1
1
1
21
J704D
J704DA
J704DB
J704L
J704LA
J704LB
4123
3214
B8 A6
B8 A6
J110F
J109M
J110M
J109F
MT3
HEATER1
HEATERC
HEATER2
132
231
132
231
4
1
2
3
5
6
7
8
8765
4
321
J13
J11A
2
3
41
GND
THERM1
GND
THERM4
HAISHI
GND
+3.3V
Loop sensor 1
Loop sensor 2
PS8PS7
J12
1
2
3
321
J1055
2
1
4HT
1
2
Sub-S
1HT
Sub-F
PS6
THERM2
GND
2HT
THERM3
GND
3HT
2112
Sub-M
Sub-R
2
11
2
J221A
J222A
J123
6543
2
1
4
1
2
3
5
6
J33J131
J502
4321
123414 13 12 11 10 9 8 2345617
PMETVNE
V
3.
3
+
DNG
YTDMUHVNE
6
5
3
2
1
4
8
7
6
5
3
2
1
4
1ST
2ST
3ST
4ST
1ST
2ST
3ST
4ST
11
1
2
21 112
72DLOS
53DLOS
4
3DLOS
82DLOS
23DLO
S
13DLOS
03D
LOS
33DLOS
92DLO
S
12DLOS
52DLOS
22DLOS
32DLOS
62DLOS
42DLOS
02DLOS
J706D
J705LH J706LH
J706LJ705L
J705D
87654321
1234567887654321
12345678
98 2345617
J172
12345678
J171
.
C
.N
3
P
XE
E
RP
2
PX
E
ER
P
V5
+
V5
+
V5+
V5+
4
P
XE
E
RP
1PXEERP
1PXEERP
4PXEERP
V5+
V5+
V5+
V5+
2
PX
E
ER
P
3
PX
E
ER
P
DNG
V3.3+
SNSROODF
D
N
G
MWP2NAF
KL2NAF/
321
J524L
J524DH
321
J524D
654321
J121
321
J536
J601
982345617
J611
PS5
123
J537
J554L
J554D
J554H
18 17 16 15 14 13 12 11 10 9 8 234561719
197165432 8 9101112131415161718
32116 15 14 13 12 11 10 9 8 2345617
J122J111
DNG
U3.3+
SNSPOT
11
NKLCTVH
2SRT
DNG
DNG
PMWP2RT
DNG
NMWP2RT
PKLCTVH
R42+
R
42
+
R5+
J1201
J73
4
1
2
3
5
6
7
8
9
01
11
4
1
2
3
5
6
7
8
9
01
11
D
N
G
11SRT
2
1
SR
T
41SRT
31SRT
D
N
G
ATADS1RT
KCS1RT
D
L
1RT
DNG
R5+
DNG
R42+
R42+
EO1RT/
7165432 8 9101112131415
J1001A
15 14 13 12 11 10 9 8 2345617
J72
21
4IRPMWP
4SRGHC
2
VEDMWP
2L
B
MW
P
2SRMWP
DNG
DNG
R5+
R42+
R42+
KLCTVH
1LBMWP
1VEDMWP
3SRMWP
3LBMWP
3VEDMWP
1SRGHC
4LBMWP
4V
EDMWP
321IRPMWP
DNG
J2001
J71
4
1
2
3
5
6
7
8
9
01
11
2
1
31
4
1
51
61
71
81
91
02
1
21
2
02
9
1
81
71
61
51
41
31
21
11
0
1
9
8
7
6
5
3
2
1
4
J551J550J549J548
1ST
2ST
3ST
4ST
123321123321
J560LJ557L J559LJ558L
J560DJ559D
J559H
J558D
J560HJ558HJ557H
J557D
321123
321
321123
123123321
12 11 10 9 8 2345617
J161
4SNSTR
3SNSTR
1SNSTR
DELNOT
DELNOT
DELNOT
DNG
DNG
D
N
G
DNG
2SNSTR
DELNOT
J101J102
12345612
2SSV
2NIV
1NIV
1SSV
3
N
IV
3SSV
4NIV
4SSV
J719DH
21
J719D
J717HJ718H J716H
12
J718D
21
J717D
12
J716D
211221
J718L
12
J719L
34DLOS
24DLOS
04DLOS
14DLOS
93DLOS
83DLOS
63D
LOS
73DLOS
J716LJ717L
12 211221
MEM3MEM4 MEM2 MEM1
1ST2ST3ST
4ST
J301
23
J51
4
1
2
3
5
6
7
8
9
01
11
21
31
41
51
61
71
81
91
02
12
2
2
32
32
22
12
02
91
81
71
61
51
41
31
21
11
01
9
8
7
6
5
3
2
1
4
NEODV/
C-NOREWOP
OELC
IELC
POT/
Y
B
T
S
V
3.3+
TSRCV
FFONO
C
D
1YATAD
DNG
DNG
DNG
D
NG
DNG
1YATAD/
1MATAD
1MATAD/
1C
A
TAD/
1CATA
D
1KATAD/
1KATAD
0DB/
DNG
19 18
J631J632
19
J732
J832
17
J731
J831
1719
J62 J61
91
81
71
61
51
41
31
21
1
1
01
9
8
7
6
5
3
2
1
4
4
1
2
3
5
6
7
8
9
0
1
11
21
31
41
51
61
71
81
91
LCS
DNG
DNG
DNG
WOPYDL
0LRTCYDL
1
LR
T
CYDL
0LRTCMDL
1LRTCMDL
DNG
ADS
V5+
DNG
WOPMDL
OYATAD/
OYATAD
IMATAD/
IMATAD
V3.3+
7
71
61
51
41
31
21
11
01
9
8
6
5
3
2
1
4
4
1
2
3
5
6
7
8
9
01
11
21
31
41
51
61
7
1
WOPKDL
0LRTCK
D
L
1LRTCKDL
0LRTCCDL
V5+
DNG
DNG
DNG
1DB/
DNG
1LRTCCDL
WOPCDL
IKATAD/
ICATAD/
ICATAD
DN
G
IKATAD
91
4
1
2
3
5
6
7
8
9
01
11
21
31
41
51
61
71
81
1
91
81
71
61
51
41
31
21
11
01
9
8
7
6
5
3
2
4
LCS
ADS
DNG
V5+
DNG
Y-MWP
Y_ATAD
Y
_
A
TAD
/
DNG
Y_0LTC
Y_1LTC
DNG
M-MWP
M_0LTC
M_1LTC
M_ATAD/
M_ATAD
DNG
V3.
3
+
4
1
2
3
5
6
7
8
9
01
11
21
31
41
5
1
61
71
81
81
71
61
51
41
3
1
21
11
01
9
8
7
6
5
3
2
1
4
D
NG
K_ATAD/
K_ATAD
DNG
C_0LTC
DB/
C_ATAD/
DNG
DNG
C_1LTC
K_1LTC
C-MWP
DNG
V5
+
K-MWP
K_0LTC
C_ATAD
DNG
CED
N
CS
/
CCANCS/
V42
+
DNG
4321
J741D
1234
J63
M
J741H
1234
J741L
4321
J529
M10
14 13 12 11 10 9 8 2345617
J21
7165432 8 91011121314
J105
DNG
DNG
DNG
V42+
V42+
V3.3+
J707M
21 2341
21 2341
DNG
V3.3+
DNG
DNG
V42+
V42+
21
J303 J203
2341
LNFG
3
1
2
R
E
W
OP
NAF
KCOLNAF
DNG
FM1
123
J106
21
SW1
V5+
J711F
J711M
2
J710F
J710M
112
.C.N
.C.N
V5+
231
J305
12
SW2
J708M
J708F
V42+
R42+
21
12
3WS4WS
1
1
J707F
FM2
PS14
Paper feeder
Scanner motor
Power switch
Fuser output
sensor
Environment
sensor
24V Interlock
switch
5V Interlock switch
Front door sensor
Fuser fan
Top of paper sensor
Registration density sensorRegistration density
belt-perimeter sensor
Y Toner
level sensor
M Toner
level sensor
C Toner
level sensor
K Toner
level sensor
Developing high-voltage
power supply PCA
Transfer 1 high-voltage
power supply PCA
Transfer 2 high-voltage
power supply PCA
J26
Power supply fan
ACH
ACL
GND
THERM1(SUB-S)
THERM4(SUB-F)
RDNS1
RDNS2
RRDLED
FRDLED
FDNS1
FDNS2
2
1
1
22
2
1
2
2
330 Chapter 3 Solve problems ENWW

Related product manuals