EasyManua.ls Logo

HP M750 series

HP M750 series
678 pages
To Next Page IconTo Next Page
To Next Page IconTo Next Page
To Previous Page IconTo Previous Page
To Previous Page IconTo Previous Page
Loading...
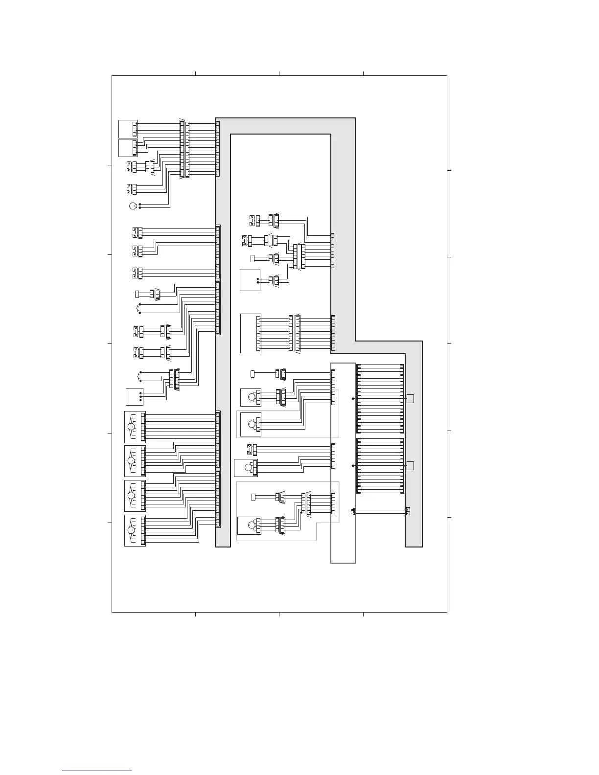
Figure 3-44 General circuit diagram (2 of 2)
A
65 4 3
B
C
D
M
M
NPCLK
GND
NPSD_RD
NPSD OUT
+5V
/NPRST
NPSTART
NPSL DATA
NPSL EN
NPLED
71654328910
J541
71654328910
10982345617
J542D
J542L
J542DH
J531D
J531DH
J531L
21
12
+3.3V
NPTRLED
MPFEEDSL
+24V
MPLASTSNS
GND
+3.3U
MPPEMPTYSNS
GND
+3.3V
M
M7
1234
123456
654321
4321
4321
J525D
J552L
J520
J525DH
J522D
J522L
J552D
J552DH
SL
SL3
12
12
12
J525L
J522DH
/PHB RVRS
PHB RVRS
/PHA RVRS
PHA RVRS
/HI SL-ON
+24U
M
M8
4321
J521
/PHB DUPFD
PHB DUPFD
/PHA DUPFD
PHA DUPFD
/PHB FEED
PHB FEED
/PHA FEED
PHA FEED
+24U
/PICK SL ON
J92
17
J1002
4
1
2
3
5
6
7
8
9
01
11
21
31
4
1
51
61
71
GND
FLIPMPHB
FLIPMI0B
FLIPMI1B
FLIPMSTBY
FLIPMI1A
FLIPMI0A
FLIPMPHA
DUPFEEDMPHB
DUPFEEDMI0B
DUPFEEDMI1B
DUPFEEDMSTBY
DUPFEEDMCHI
DUPFEEDMI1A
DUPFEEDMI0A
DUPFEEDMPHA
GND
4
1
2
3
5
6
7
8
9
01
11
21
31
41
51
61
71
Duplex
reverse motor
Duplex reverse solenoid
Duplex feed motor
Media sensor
Media sensor
10 9 8 2345617
J152
7654321
J114D
J114H
1234567
J114L
10 9 8 2345617
J1003
Duplex model only
123456
J1006
10 9 8 2345617
J112
Duplex model only
J931J932
43211234
16 15 14 13 12 11 10 9 8 2345617
71654328910111213141516
16151413121110982345617
J742D
J742L
J742LH
21
M9
PS4
123
J534
J739L
PS1
J533
123
321
123
J739DH
J739D
J151
PS15
J544
PS13
J506
PS12
J505
123 123 321
J181
J181A
71654328910111213141515 14 13 12 11 10 9 8 2345617
J181B
J511DH
12
J511L
21
J511D
SL
21
SL5
1
2
SW5
J738L
J738DH
J738D
J510
123
321
321
PS9PS10
321
J743L
J743DH
123
J743D
321
J513
J709L
SW6
21
J709D
J709DH
12345
54321
123
M
12345678
M3
87654321
J514
87654321
M2
12345678
J515
MM
87654321
J516
12345678
M4
12345678
87654321
J517
M1
16 15 14 13 12 11 10 9 8 2345617
J81
J81A
71654328910111213141516
J81B
M
PS11
123
M6
1234
J519
J518
1234567
J1005
M
M5
4321
J523
1234
J535L
4321
J535D
J535DH
J538D
J538DH
J538L
SL
21
SL1
21
21
12
J530DH
12
J530D
SL
J530L
12
SL2
123
321
123
321
123
321
J561D
J736D
J736L
J561H
J528
J736DH
J527
PS3
PS2
12
J93
J2 J1
21
J91
J1001
LIFTMON
+24V
LIFTSNS
GND
+3.3R
PEMPTY
GND
+3.3R
CSTSIZE22
CSTSIZE21
GND
CSTSIZE20
CSTSIZE12
CSTSIZE11
GND
CSTSIZE10
RDOORSNS
GND
+3.3V
N.C.
N.C.
N.C.
N.C.
N.C.
N.C.
DRMHPYMC
GND
+3.3A
DRMHPBK
GND
+3.3A
WTSSNS
GND
TONLED5V
TBOXSNS
GND
PFULLSNS
GND
+3.3A
FSRKAIJYO
GND
+3.3A
TRIKANHP
GND
TRIKANSL
+24V
/FSRFG
/FSRDEC
/FSRACC
FSRFR
GND
GND
+24R
+24R
/ITBFG
/ITBDEC
/ITBACC
ITBFR
GND
GND
+24R
+24R
/3DEVFG
/3DEVDEC
/3DEVACC
3DEVFR
GND
GND
+24R
+24R
/3DRUMFG
/3DRUMDEC
/3DRUMACC
3DRUMFR
GND
GND
+24R
+24R
Driver PCA
/PHB_DEV
PHB_DEV
/PHA_DEV
PHA_DEV
DEVDTCH SNS
GND
+5V
+24R
GND
21
4
1
2
3
5
6
7
8
9
01
11
31
41
51
6
1
7
1
81
91
0
2
12
+5V
GND
DEVRIKANHP
DEVMPHB
DEVMI0B
DEVMSTBY
DEVMI0A
DEVMPHA
GND
FEEDMPHB
FEEDMI0B
FEEDMI1B
FEEDMSTBY
FEEDMCHI
FEEDMI1A
FEEDMI0A
FEEDMPHA
CSTSL
HFLAPPER
FLIPSL2
GND
21
4
1
2
3
5
6
7
8
9
01
11
31
4
1
51
61
7
1
8
1
91
02
12
Developer motor
DC controller PCA
Drum motor
Fuser motor
ITB motor
ITB
Residual toner
full sensor
Face-down bin
media full sensor
Fuser pressure
release sensor
T1
alienation switch
T1
disengagement solenoid
Right door sensor
Y/M/C drum home-
position sensor
K drum home-
position sensor
Cassette lifter motor
Cassette media stack
surface sensor
Cassette media
out sensor
Cassette media
width switch
MP tray media
out sensor
Last-media sensor
MP tray
pickup solenoid
Cassette pickup solenoid
Pickup motor
Developer
disengagement
sensor
Developer
disengagement
motor
SW8
SW7
Cassette media
end switch
Toner collection
box switch
1
2
ENWW Tools for troubleshooting 331

Related product manuals