EasyManua.ls Logo

HP PROLIANT DL320 G6 - Cabling; Cabling Overview; Non-Redundant Power Supply Cabling; Optional Non-Redundant High-Efficiency Power Supply Cabling

HP PROLIANT DL320 G6
89 pages
To Next Page IconTo Next Page
To Next Page IconTo Next Page
To Previous Page IconTo Previous Page
To Previous Page IconTo Previous Page
Loading...
Cabling 78
Cabling
Cabling overview
This section provides guidelines that help you make informed decisions about cabling the server and
hardware options to optimize performance.
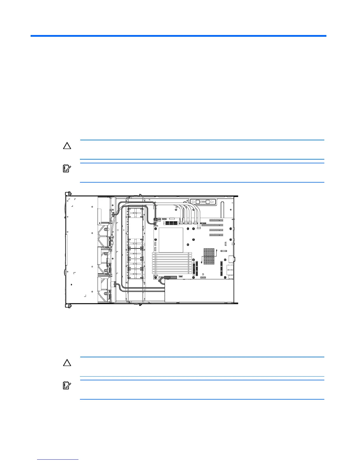
Non-redundant power supply cabling
CAUTION: When routing cables, always be sure that the cables are not in a position where
they can be pinched or air flow can be blocked.
IMPORTANT: Route the cables without blocking the airflow or other installed components.
Use the cable clips installed in the chassis to manage cable routing.
Optional non-redundant high-efficiency power
supply cabling
CAUTION: When routing cables, always be sure that the cables are not in a position where
they can be pinched or air flow can be blocked.
IMPORTANT: Route the cables without blocking the airflow or other installed components.
Use the cable clips installed in the chassis to manage cable routing.

Related product manuals