EasyManua.ls Logo

HP PROLIANT DL320 G6 - Optional Redundant Power Supply Cabling; Optional Common Slot Power Supply Cabling

HP PROLIANT DL320 G6
89 pages
To Next Page IconTo Next Page
To Next Page IconTo Next Page
To Previous Page IconTo Previous Page
To Previous Page IconTo Previous Page
Loading...
Cabling 79
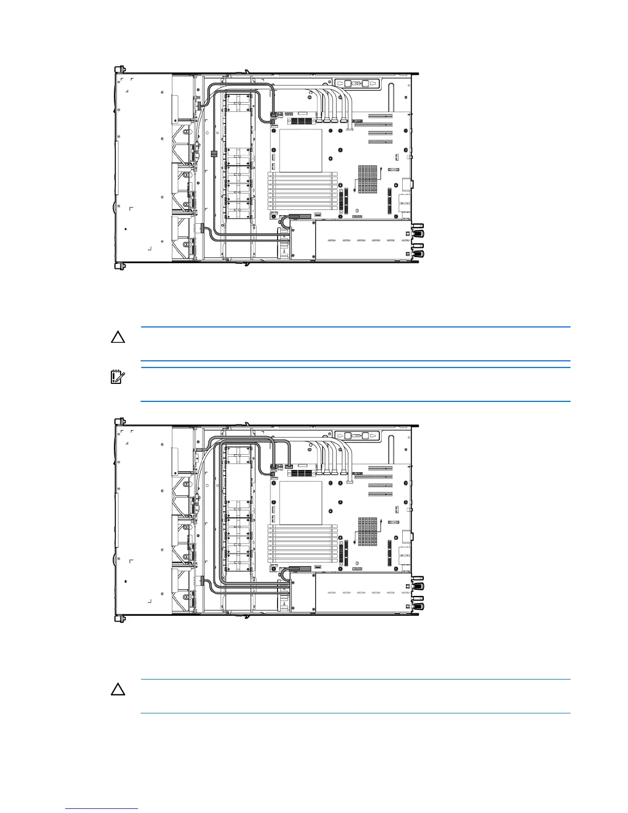
Optional redundant power supply cabling
CAUTION: When routing cables, always be sure that the cables are not in a position where
they can be pinched or air flow can be blocked.
IMPORTANT: Route the cables without blocking the airflow or other installed components.
Use the cable clips installed in the chassis to manage cable routing.
Optional common slot power supply cabling
CAUTION: When routing cables, always be sure that the cables are not in a position where
they can be pinched or air flow can be blocked.

Related product manuals