EasyManua.ls Logo

HTP UFTC-140 - Page 16

HTP UFTC-140
80 pages
Print Icon
To Next Page IconTo Next Page
To Next Page IconTo Next Page
To Previous Page IconTo Previous Page
To Previous Page IconTo Previous Page
Loading...
LP-648 Rev. 002 Rel. 002 Date 9.16.20
16
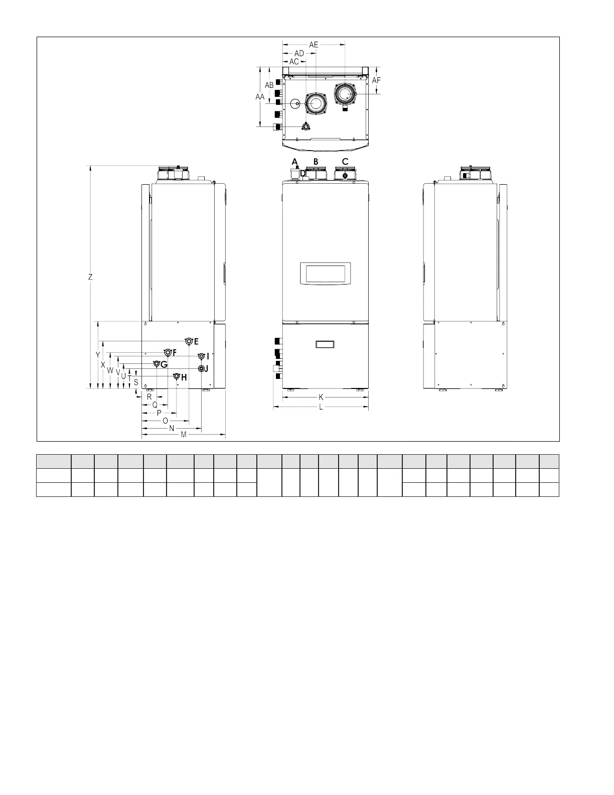
Figure 4 - Floor Model Dimensions
Table 11 - Floor Model Specications and Dimensions
System Safeties – The boiler is provided with many safety features
to ensure reliable and safe operation. Each safety is connected to
the boiler control. The boiler will alert the user if an unsafe condition
occurs and needs to be addressed. The following are provided
safeties: Flue Pressure Switch (monitors ue pressure), Burner High
Limit (monitors burner plate temperature), High Limit Water Switch
(monitors boiler temperature), Low Water Sensor (monitors water
level in the heat exchanger), optic ame sensor (monitors ame
quality), Flue Sensor (monitors ue temperature), Condensate
Pressure Switch (monitors pressure to ensure condensation does
not back up into boiler).
Manual Air Vent – Each boiler is equipped with an air vent to
discharge air from the system during start–up.
Intake and Exhaust Adapters – The boiler is equipped with
adapters to ease connection to the vent system. The adapters are
provided with clamps and seals to secure eld supplied piping, and
test ports to ease monitoring of the combustion system. Each boiler
is supplied with a 6 inch piece of CPVC that must be connected into
the exhaust vent adapter.
Boiler 1” Return and 1” Supply Connection – Boilers are equipped
with both top and bottom piping connections for greater installation
exibility.
Gas Connection – The boiler is equipped with a ¾” gas connection
to connect the incoming gas supply.
Field Wiring and Power Switch – Each boiler is supplied with a power
switch to cut o power. The boiler is also equipped with two front
mounted terminal strips. These terminal strips are separated into low
and line voltage to ease system wiring.
Condensate Trap and Hose Assembly – Each boiler has a built-in
condensate trap to control the discharge of condensate produced by
the boiler during normal operation. A corrugated condensate hose is
also provided to ensure proper drainage of condensate into the pump
or drain.
Low Water Cut O Probe – LWCO is provided with each boiler to
ensure the boiler has an adequate water level to eliminate overheating
and damge to the heat exchanger.
Pump Service Mode – Allows manual operation of pumps to
commission system and check pump operation.
Model K L M N O P Q R S T U V W X Y Z AA AB AC AD AE AF
140 17.3 19.1 16.8 12 9.5 7 5.3 3
2.5 4 5 6.5 7.3 9.5 13.5
44.8 12 7.4 4.7 6.8 12.6 5.5
199 19.7 21.5 18.2 13.3 10.8 8.3 6.6 4.3 48 14 8.5 3.2 9.2 15.1 5.2

Table of Contents

Related product manuals