EasyManua.ls Logo

Hussmann VRM - Page 41

Hussmann VRM
46 pages
Print Icon
To Next Page IconTo Next Page
To Next Page IconTo Next Page
To Previous Page IconTo Previous Page
To Previous Page IconTo Previous Page
Loading...
P/N 3034041_D 41
HUSSMANN CORPORATION • BRIDGETON, MO 63044-2483 U.S.A.
VRM Merchandisers
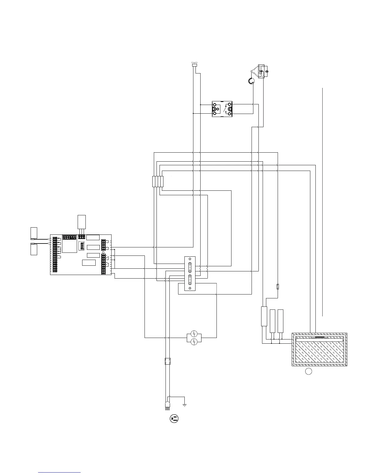
All components must have mechanical ground, and the merchandiser must be grounded.
WARNING
R = Red Y = Yellow G = Green BL = Blue BK = Black W = White B = Brown O = Orange GR = Grey
WARNING
UNPLUG THE UNIT BEFORE SERVICING.
ADVERTENCIA:
DESCONECTE EL EQUIPO ANTES DE REALIZAR
CUALQUIER SERVICIO O MANTENIMIENTO.
ELECTRICAL SPECS
MODEL VRM
VOLTAGE 115 V
FRECUENCY 60 HZ
BK= BLACK
W= WHITE
BL= BLUE
R= RED
BW=BROWN
EVAP. FANS
NEMA
5-15P
GRN
115 V
60HZ
1HP
DOOR AND FRAME HEATERS
B KW
BL
R
LIGHT
SWITCH
LED DISPLAY
FRAME
HEATER
ELEC-TRON
3-S-226
1 2
7 8
3 4
9 10
11 12
23 24
25 26
W
BK
COMPRESSOR
RELAY
OUT3
OUT2
OUT1
OUT4
RS-485
MODULE
RTN400 SM
OUT2 OUT3
OUT1
OUT4
LINE
1 23
4
56 789
10
11
12 13
14
1819202122
23
24
25
2627
28
29
30
3132
33
GND
D
GND
D
OC
12V
TTL
OPTIONAL
SENSOR TEMP
DEFROST
ORANGE
12V
D
GND
KEYB
15 cm.
MAX.
NEUTRO
NEUTRO
NO
POWER SUPPLY
COMPRESSOR LH
CURRENT
RELAY
S
R
C
12
1
2
3
PB1
PB2
INPUT
OUTPUT
LED
SENSOR TEMP
AIR
GREEN
E
N
D
L
E
D
1
3
4
2
1
2
3
4
1 FAN
COND.
W
BK
W
BK
BK
BK
BK
BK
BK
W
BK
BK
W
BK
BK
BW
W W
W
W
W
W
W
BK
BK
BK
BK
BK
BK
WW
W
W
BK
BK
BK
BK
BK
W
W
W
W
W
W
BK
BK
BK
BK
5 6
W W
21
2b
1b
BK
W
G
W
LIGTHS
LED DISPLAY
E

Related product manuals