EasyManua.ls Logo

ICC EXCEL - Round Support (ERDS) Installation

ICC EXCEL
32 pages
Print Icon
To Next Page IconTo Next Page
To Next Page IconTo Next Page
To Previous Page IconTo Previous Page
To Previous Page IconTo Previous Page
Loading...
EXCEL Canada 29 Owner’s Manual
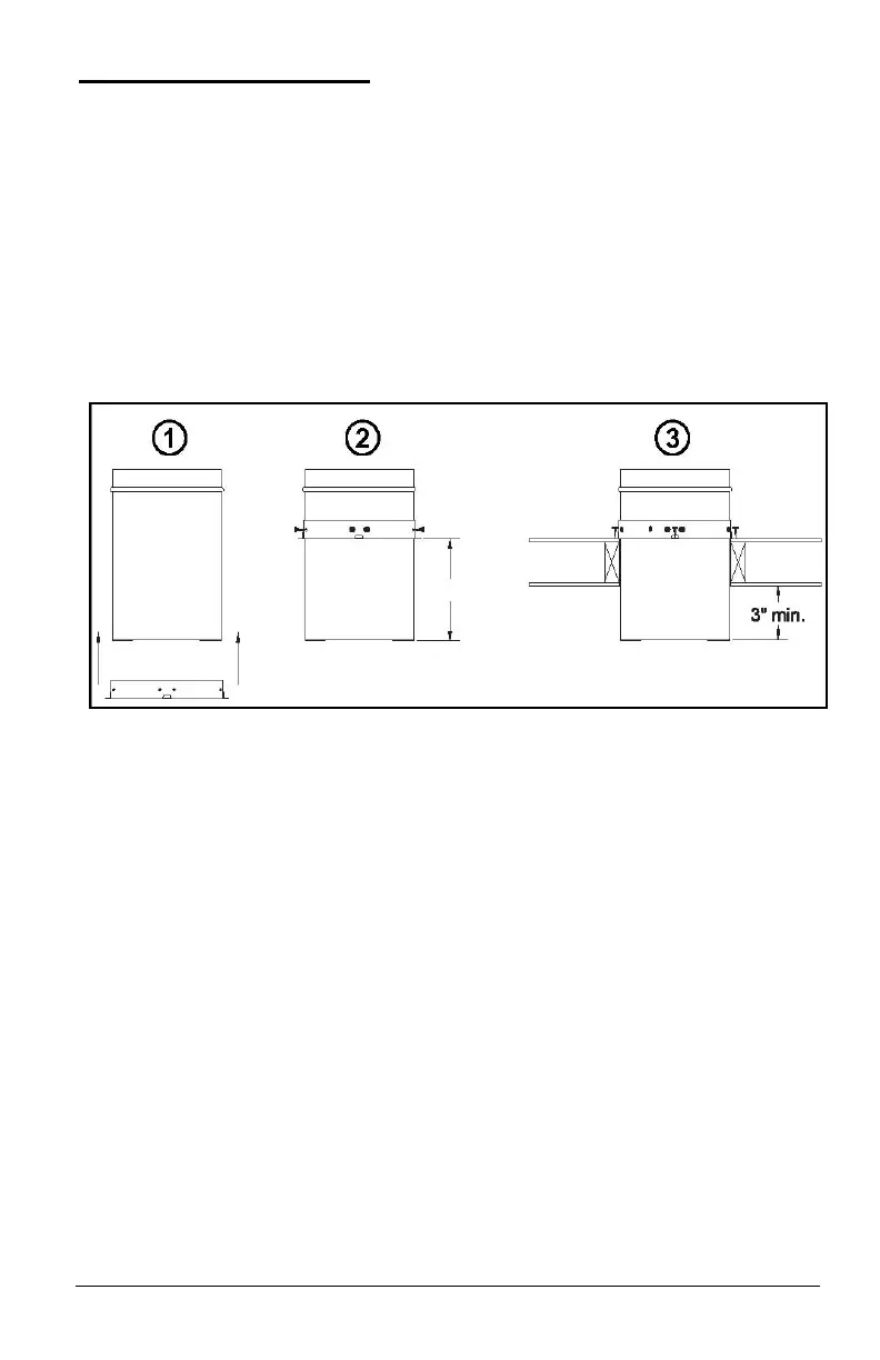
ROUND SUPPORT (ERDS)
To install the round support using the support collar follow the Excel
installation instructions for the round support replacing step #2 with the
following:
1. Slide the support collar over the support from the bottom making sure
the four tabs are pointing downwards - see drawing below. Before
screwing the collar in place you must measure to compensate for the
thickness of the framing materials and also insure that the bottom of
the support extends a minimum of 3" below the finished ceiling. Fasten
the collar to the support with the self tapping metal screws provided.
2. The tabs have been designed so that the support can be pushed up
through the square framed opening from the bottom and then rotated
1/4 turn so that the tabs sit on top of the framing - the round trim collar
is large enough to cover the square hole. Once all four tabs are sitting
on the framing it must be nailed or screwed in place. This can be
accomplished either from the top through the holes in the tabs, or
through all four sides of the support using a minimum #8 x 1 1/2"
screws.
To complete the installation follow the remaining steps in the Excel
installation instructions.