EasyManua.ls Logo

Ice Qube Evolution Series - 8000 Ev

Default Icon
40 pages
Print Icon
To Next Page IconTo Next Page
To Next Page IconTo Next Page
To Previous Page IconTo Previous Page
To Previous Page IconTo Previous Page
Loading...
27
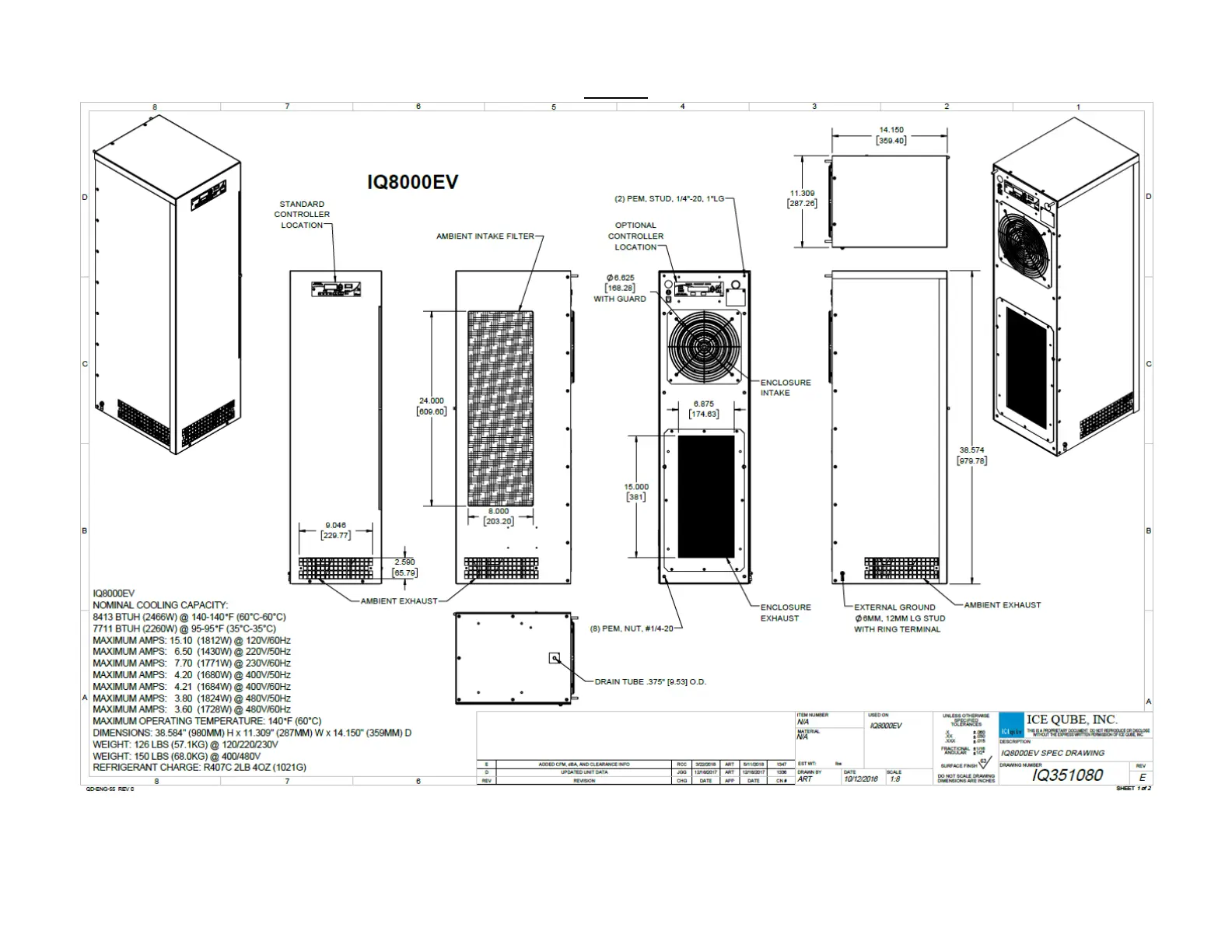
8000EV
Figure 18

Related product manuals