EasyManua.ls Logo

Icom IC-F3S - IC-F3;S Specific Adjustments

Icom IC-F3S
52 pages
Print Icon
To Next Page IconTo Next Page
To Next Page IconTo Next Page
To Previous Page IconTo Previous Page
To Previous Page IconTo Previous Page
Loading...
5 - 3
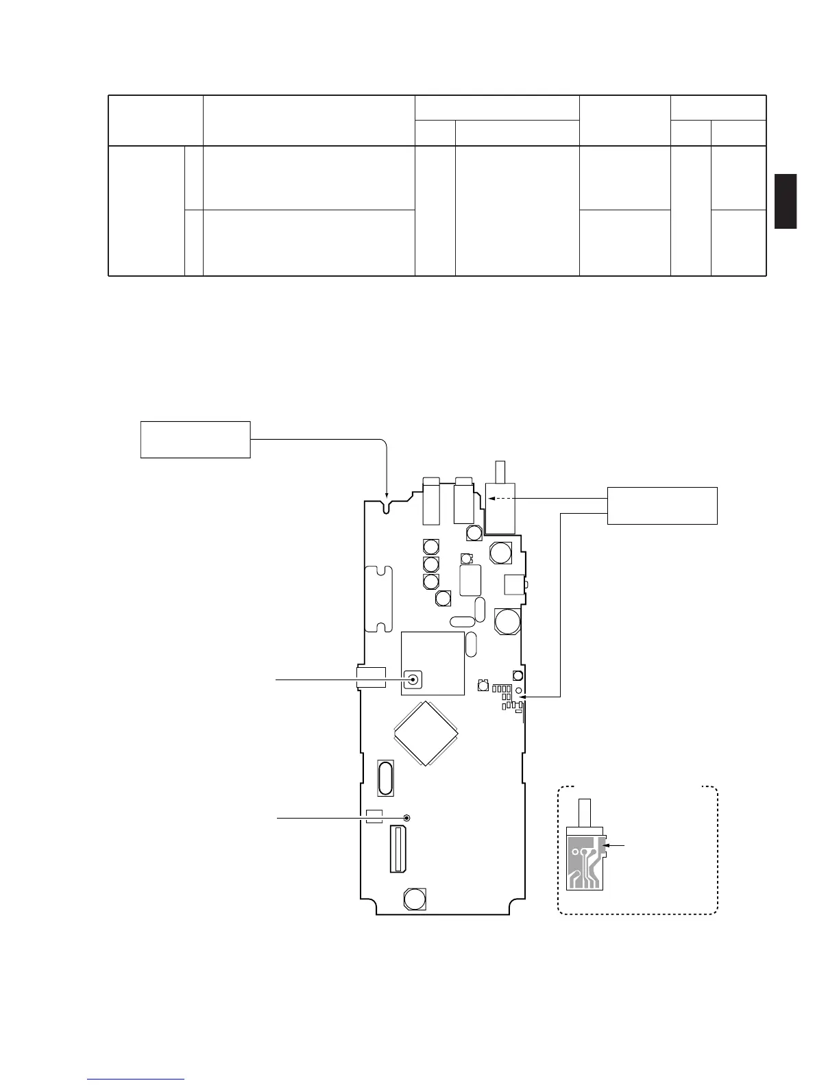
5-2 PLL ADJUSTMENT for IC-F3/S
PLL LOCK
VOLTAGE
1
2
• Operating freq. :
150.000 MHz (L-band)
174.000 MHz (H-band)
• Transmitting
• Receiving
MAIN Connect a multi-meter
to check point CP1.
3.0 V (L-band)
4.3 V (H-band)
2.2–3.2 V
(L-band)
3.1–4.1 V
(H-band)
MAIN L11
Verify
ADJUSTMENT ADJUSTMENT CONDITIONS
UNIT LOCATION
VALUE
UNIT ADJUST
MEASUREMENT ADJUSTMENT
connect (soldering) here
DC power supply
,
.
see detailed illustration
below
Power supply connection
VR board
connect (soldering)
, line here
CP1
PLL lock voltage
check point
L11
PLL lock voltage
adjustment
RF power meter
F3/S
• MAIN unit

Related product manuals