EasyManua.ls Logo

Icom IC-F3S - IC-F4;S Specific Adjustments

Icom IC-F3S
52 pages
Print Icon
To Next Page IconTo Next Page
To Next Page IconTo Next Page
To Previous Page IconTo Previous Page
To Previous Page IconTo Previous Page
Loading...
5 - 7
F4/S
5-6 PLL ADJUSTMENT for IC-F4/S
PLL LOCK
VOLTAGE
1
2
3
4
• Operating freq. :
400.000 MHz (L-band)
440.000 MHz (ML-band)
470.000 MHz (MH-band)
490.000 MHz (H1/H2-bands)
• Receiving
• Transmitting
• Operating freq. :
430.000 MHz (L-band)
470.000 MHz (ML-band)
500.000 MHz (MH-band)
512.000 MHz (H1-band)
520.000 MHz (H2-band)
• Receiving
• Transmitting
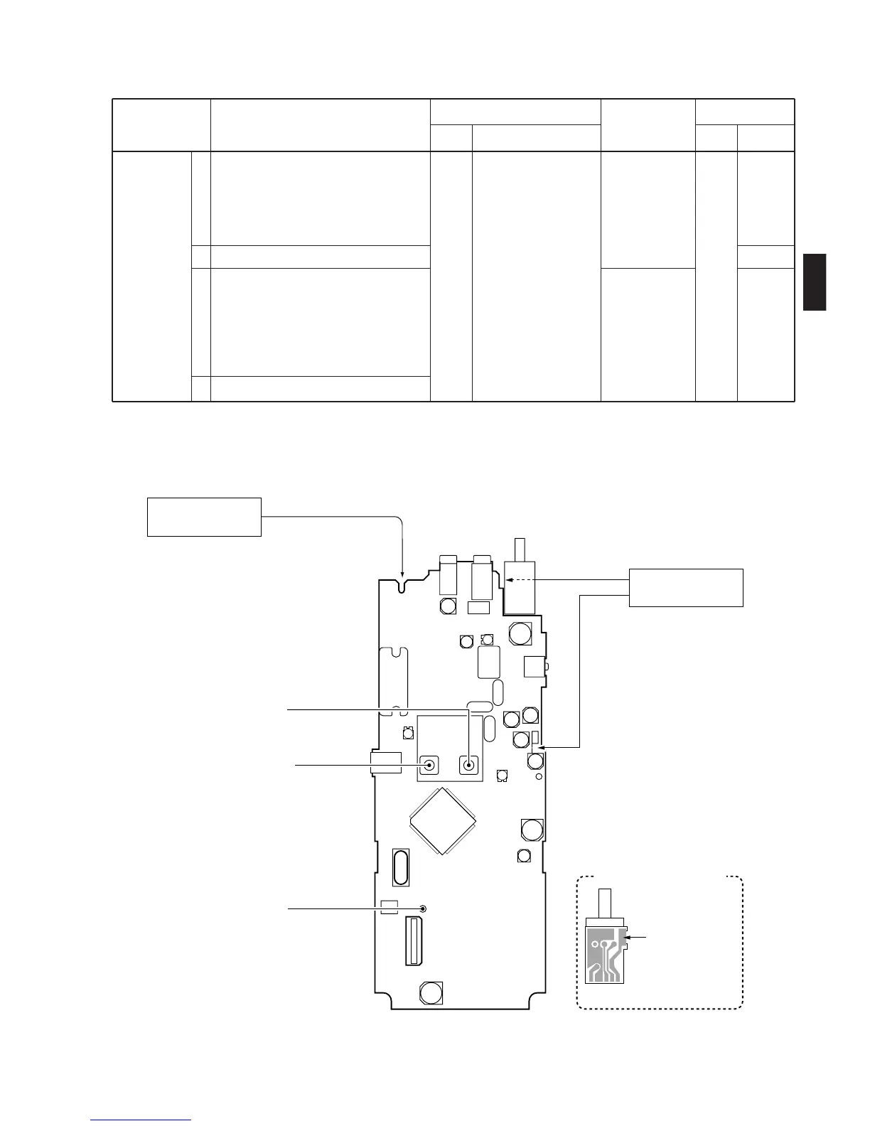
MAIN Connect a multimeter
to check point CP1.
1.3 V
2.5–4.2 V
(H1-band)
3.0–4.5 V
(other)
MAIN L11
L405
Verify
ADJUSTMENT ADJUSTMENT CONDITIONS
UNIT LOCATION
VALUE
UNIT ADJUST
MEASUREMENT ADJUSTMENT
connect (soldering) here
DC power supply
,
.
see detailed illustration
below
Power supply connection
VR board
connect (soldering)
, line here
L405
PLL lock voltage
adjustment for TX
L11
PLL lock voltage
adjustment for RX
CP1
PLL lock voltage
check point
RF power meter
• MAIN unit

Related product manuals