EasyManua.ls Logo

ICP G9MXE - Select Chart

ICP G9MXE
59 pages
Print Icon
To Next Page IconTo Next Page
To Next Page IconTo Next Page
To Previous Page IconTo Previous Page
To Previous Page IconTo Previous Page
Loading...
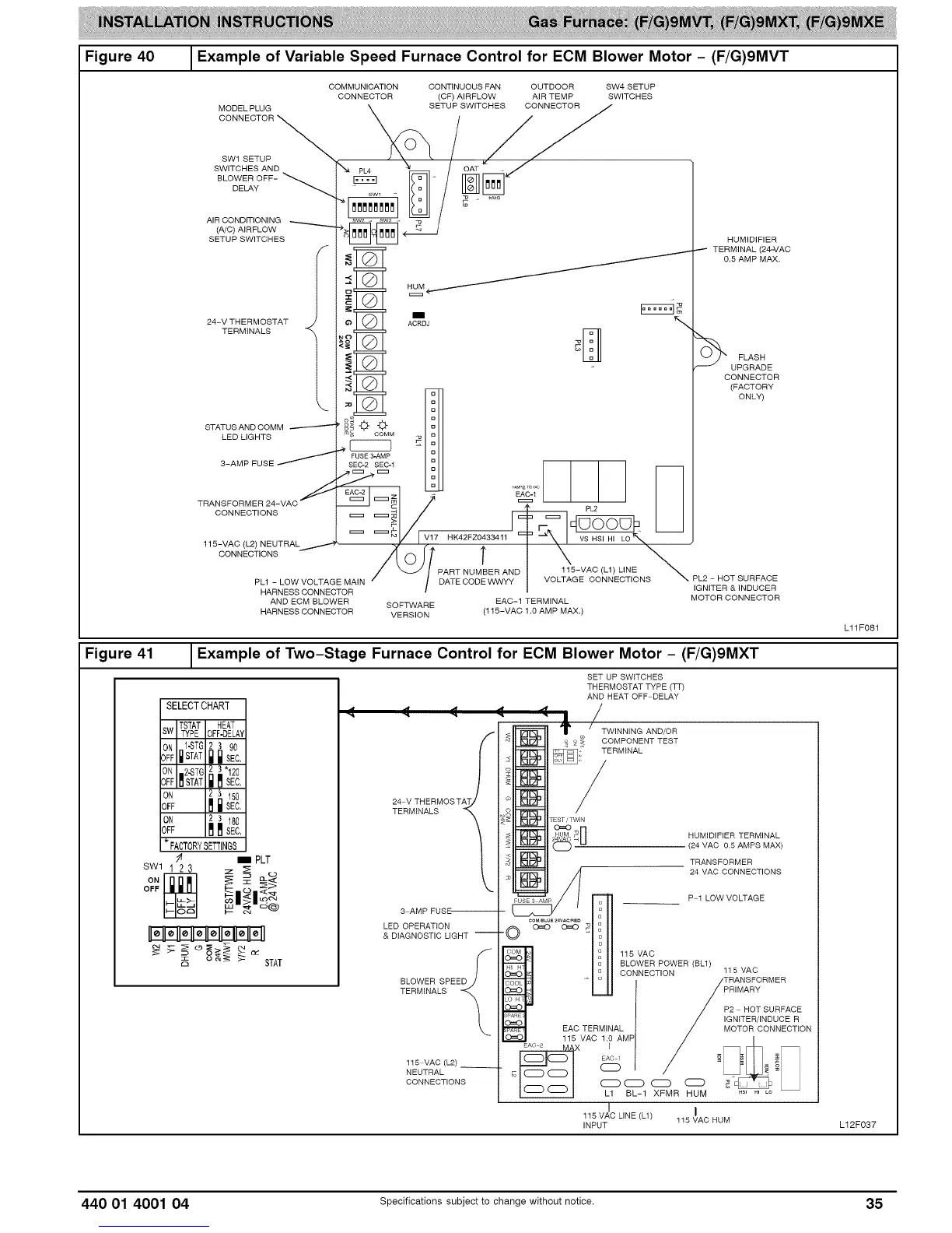
Figure 40 _Example of Variable Speed Furnace Control for ECM Blower Motor - (F/G)9MVT
MODEL PLUG
CONNECTOR \
COMMUNICATION CONTINUOUS FAN OUTDOOR SW4 SETUP
CONNECTOR (CF) AIRFLOW AIR TEMP SWITCHES
SETUP SWITCHES CONNECTOR
SW1 SETUP
SWITCHES AND
BLOWER OFF-
DELAY
AIR CONDITIONING
(A/C) AIRFLOW
SETUP SWITCHES
24-V THERMOSTAT
TERMINALS
STATUS AND COMM
LED LIGHTS
3-AMPFUSE
TRANSFORMER
CONNECTIONS
115-VAC (L2) NEUTRAL
CONNECTIONS
I
ACRDJ
PL1- LOW VOLTAGE MAIN
HARNESSCONNECTOR
AND ECM BLOWER SOFTWARE
HARNESS CONNECTOR VERSION
/
HUMIDIFIER
TERMINAL (24A!AC
0.5 AMP MAX.
_ O_ FLASH
UPGRADE
CONNECTOR
(FACTORY
E_ _ ONLY)
K 2 Z0 33 11 _ _ _
kRT NUMBER AND _ t15-VAC (L1) LINE
DATE CODEVWVYY I VOLTAGE CONNECTIONS \ PL2 - HOTSURFACE
I
IGNITER & INDUCER
EAC-1 TERMINAL MOTOR CONNECTOR
(115-VAC 1 .O AMP MAX.)
Figure 41
Example of Two-Stage Furnace Control for ECM Blower Motor - (F/G)9MXT
SET UP SWITCHES
THERMOSTAT TYPE(TT)
AND HEAT OFF DELAY
SELECTCHART
TERMINALS
3 AMP
LED OPERATION
& DIAGNOSTIC LIGHT --
V '%L%PEE(
115 VAC (L2)
NEUTRAL
CONNECTIONS
TSTAT HEAT
SW TYPE 0FF-DELAY
0#F 1-STG 2 3 90
I_STAT I_ I_ SEO,
ON I2-ST6 2 3"12 0
OFF II $TAT III III SEC,
ON 2_S 1_0
OFF _ i SEC.
OFNF 2.s.180
* FACTORYSETTINGS
;_ I PLT
SWl 1 2 3 z _ o
_) _
I>II
LU _
_ _-g_o_>_ _
o _ _: _ STAT
TWINNING AND/OR
_ OMPONENT TEST
, TERMINAL
HUM _ HUMIDIFIER TERMINAL
(24 VAC 0.5 AMPS MAX)
TRANSFORMER
24 VAC CONNECTIONS
-O c_'_W_O_ i_ P I LOW VOLTAGE
lill;:Swvs°POWER,°L.
HI U COiNECTION 115 VAC
" /TRISNASRFyORMER
/ IP2NITIO/TN%%RcF;S E
EAC TERMINAL MOTOR CONNECTION
115 VAC 1.0 AMP / l
EAC 2 _^X I / _ /
-- . CD " }
L(_I B_L- 1X(_FFMR H(_UUM g_ [_
I I
115 VAC LINE (L1)
115 VAC RUM
INPUT
Ltl F081
L12F037
440 01 4001 04 Specifications subject to change without notice. 35

Related product manuals