EasyManua.ls Logo

ICP G9MXE - Vent Termination Locations; Crawl Space Vent Termination; Attic Vent Termination

ICP G9MXE
59 pages
Print Icon
To Next Page IconTo Next Page
To Next Page IconTo Next Page
To Previous Page IconTo Previous Page
To Previous Page IconTo Previous Page
Loading...
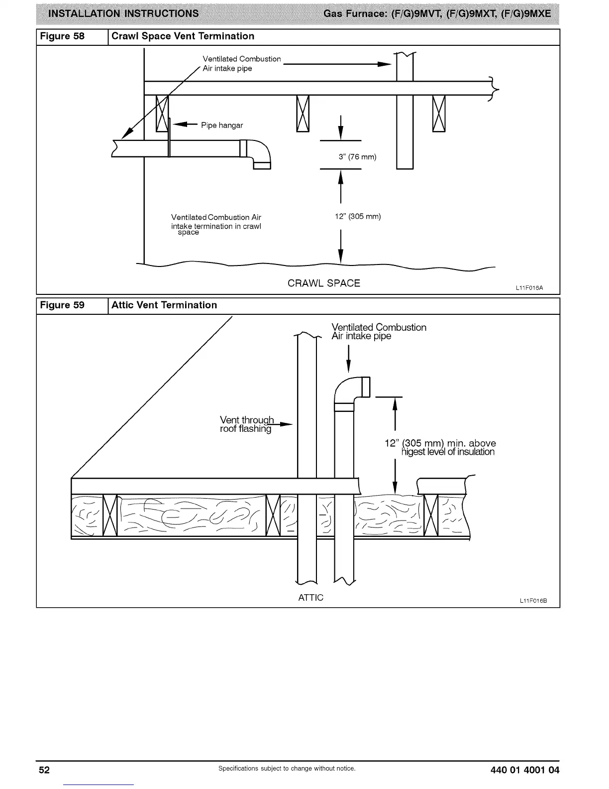
Figure 58 1Crawl Space Vent Termination
Ventilated Combustion _ T_
/ Air intake pipe _ I I
Pipe hangar
'_" (76 mm)
t
Ventilated Combustion Air 12" (305 mm)
intake termination in crawl
space
Figure 59 l Attic Vent Termination
CRAWL SPACE
Vent throuhgb__._
roof flashing
Ventilated Combustion
- Air intake pipe
--f
L11F016A
ATTIC
L11F016B
52 Specifications subject to change without notice. 440 01 4001 04

Related product manuals