EasyManua.ls Logo

Ideal Boilers HE30 - Boiler Specifications and Clearances

Ideal Boilers HE30
56 pages
Print Icon
To Next Page IconTo Next Page
To Next Page IconTo Next Page
To Previous Page IconTo Previous Page
To Previous Page IconTo Previous Page
Loading...
6
icos - Installation & Servicing
GENERAL
nm8113
450
56
115
50
400
137
410
59
55
300 (approx)
218
645
52
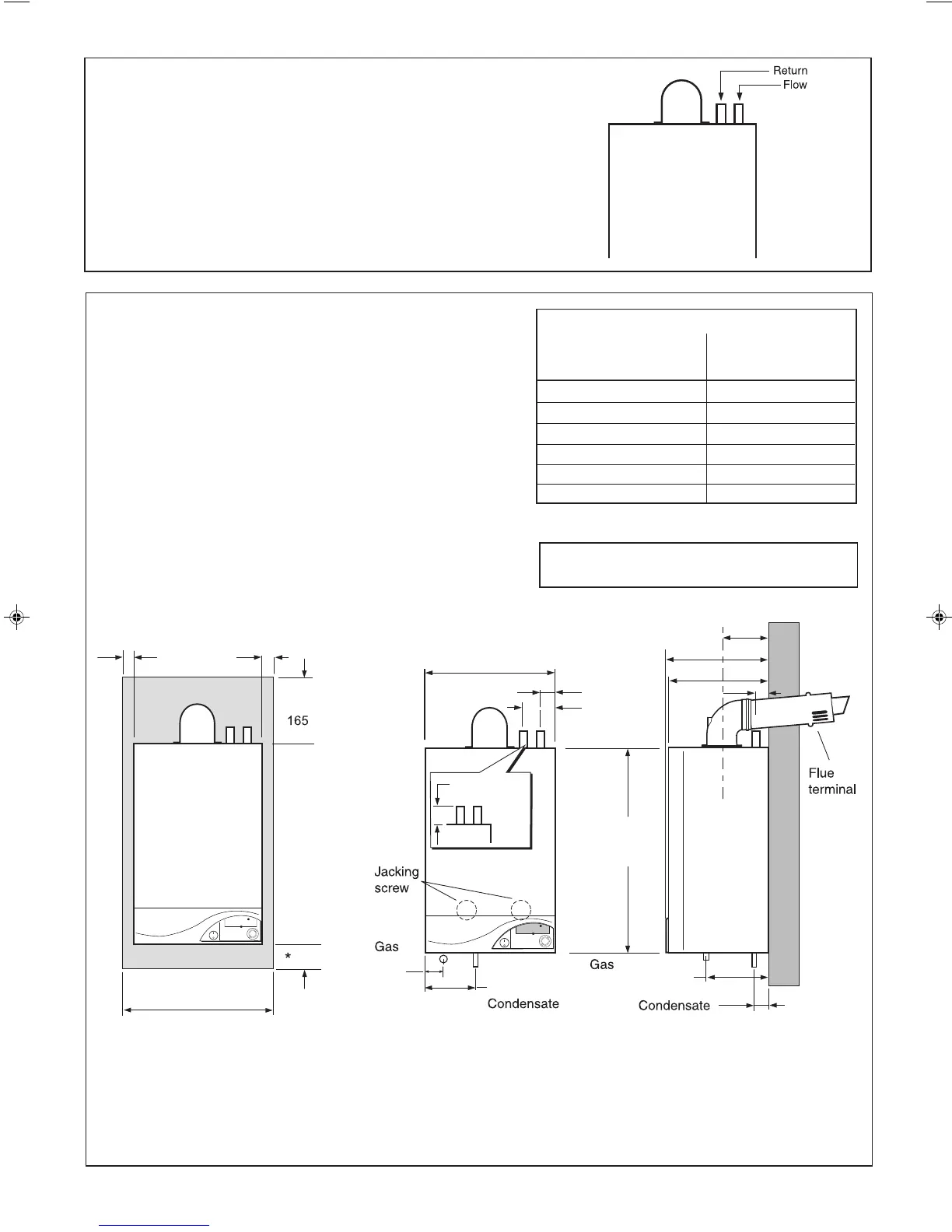
The boiler flow and return pipes (28mm) are supplied fitted to the boiler ready for
top connection.
The flow and return pipes should be continued in 28mm while the system load is
above 60,000 Btu (17.6 kW). Below which they may be reduced to 22mm.
Notes.
a. This appliance is NOT suitable for use with a direct hot water cylinder.
b. If the boiler is to be used on a sealed system an overheat thermostat is fitted
as standard
1
BOILER WATER CONNECTIONS
A
480
150
15 from case
nm8112
2
BOILER CLEARANCES
The following minimum clearances must be maintained for
operation and servicing.
Additional space will be required for installation, depending upon
site conditions.
Side and Rear Flue
a Provided that the flue hole is cut accurately, e.g. with a core drill,
the flue can be installed from inside the building where wall
thicknesses do not exceed 600mm (24"). Where the space into
which the boiler is going to be installed is less than the length of
flue required the flue must be fitted from the outside.
Installation from inside ONLY
b. If a core boring tool is to be used inside the building the space in
which the boiler is to be installed must be at least wide enough
to accommodate the tool.
all dimensions in mm
Front clearance
The minimum front clearance when built in to a cupboard
is 5mm from the cupboard door but 450mm overall
clearance is still required, with the cupboard door open, to
allow for servicing.
* Bottom clearance
after installation can be reduced to 5mm. However,
150mm must be available for servicing.
SIDE FLUE ONLY
Horizontal length of flue Top clearance
from centre line of boiler required (MIN.)
to outside wall Dim. A
0.5 m 165 mm (6
1/2")
1.0 m 170 mm (6
11/16)
1.5 m 185 mm (7 1
/4")
2.0 m 200 mm ( 7 7/8")
2.5 m 210 mm (8 1
/4")
3.0 m 225 mm (8 7/8")
REAR FLUE ONLY
MIN. Top clearance required = 145 mm
202414-6.pmd 19/02/2008, 13:076

Related product manuals