EasyManua.ls Logo

IFEX Technologies 3000 - Technical Drawings; Impulse Gun IFEX 3001, Assembly

IFEX Technologies 3000
37 pages
Print Icon
To Next Page IconTo Next Page
To Next Page IconTo Next Page
To Previous Page IconTo Previous Page
To Previous Page IconTo Previous Page
Loading...
Page| 15
6
5
2
4
7
9
10
11
12
13
12
13
13
14
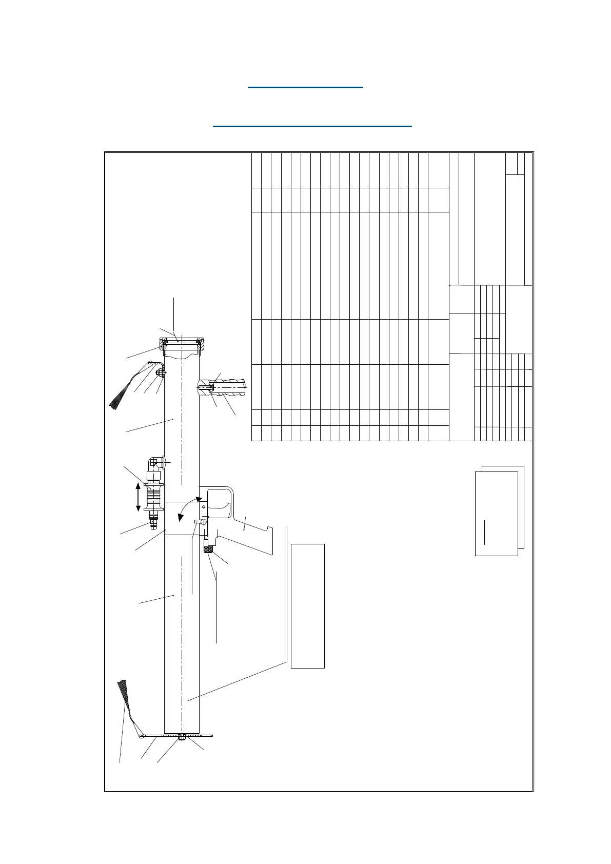
Air pressure connection
OPEN CLOSE
Gun trigger lock
lock
release
Diaphragm
3
Water connection
1
IFEX 3000/1, Impulse Gun-compl.
IFEX 3000
Impulse Fire
Extinguishing
Technology
IF-3001-01
IFEX Code:
Scale
IFEX Technologies GmbH
Hansestraße 18
D-27419 Sittensen
Germany
Item
Qty.
Material
11
10
9
8
1
1
1
7
6
5
4
1
1
1
1
11
2
3
1
1
A2
DIN
12
13
14
Sheet
985
Plastic
A2
3
2
%
Surface
Name
DIN ISO
1302
acc.
Dimension without
tolerance acc.
DIN 7168-m
Index
Alteration
Date
Name
Norm
Drawn
Date
Breese
1998
IMPULSE GUN IFEX 3001
ASSEMBLY
Check.
15.12.
Water valve
Front support grip
Snap on air pressure connection
Water barrel
Air power chamber
High performance valve
Screwed cap
Shoulder strap
Washer DIN 125
Hexagon nut
Muzzle with split diaphragm
Description and type
Washer-Teflon
Pistol grip w. trigger & locking dev.
01000017
01000015
01000040
01000016
01000014
01000008
01000009
01000012
Art.-
IFEX Code
Order of spare parts:
Please use part list nos.
15
16
17
1000003
1000004
1000007
1000021
Rear support for shoulder strap
1.4301
1.4301
Forward support for shoulder strap
Burst disc with socket wrench
Special wrench for screwed cap
St.
18
26.09.01
Breese
NATO-STOCK NR.
VersNr. 4210-12-349 8251
15
16
15
Part List
IF-IG-3000-110
CAD4-Tetra\H:\HB-3012engl/Blatt15A
Remark:
Technical drawings
1. Impulse Gun IFEX 3001, assembly

Related product manuals