EasyManua.ls Logo

IFEX Technologies 3000 - Hose Reel, Assembly (2)

IFEX Technologies 3000
37 pages
Print Icon
To Next Page IconTo Next Page
To Next Page IconTo Next Page
To Previous Page IconTo Previous Page
To Previous Page IconTo Previous Page
Loading...
Page | 18
1
IP-3100-1
IFEX Technologies GmbH
Hansestraße 18
D-27419 Sittensen
Germany
IFEX 3000
Index
Alter at ion
Date Name
Impulse Fire
Extinguishing
Technology
Dimensions without
tolerances acc.
DIN 7168-m
Surface
acc.
DIN ISO
1302
Name
Date
Check
Norm
Drawn
IFEX Code:
Scale
%
Breese
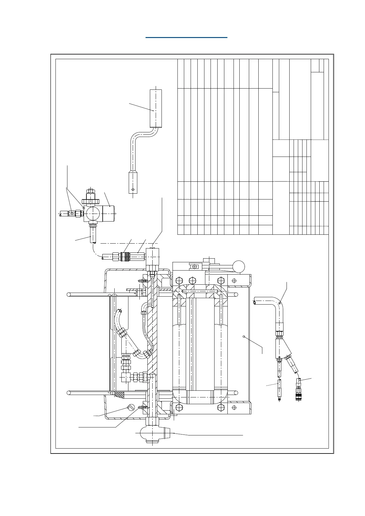
Hose reel,assambly
Description and type
Oty
Pos.
1
Art.-
27055
IFEX
Code
1
2
4
5
6
7
8
10
Drawing-
IF-3000-130-1
2001
26.10.
10
9
8
7
6
5
4
1
1
1
1
1
1
1
Adapter ¼" x 1/8"
Quick snap on connection air
3
1
2
1
Crank handle
Pressure regulator 25 bar, ass.
27150
65100
Alt. pressure regulator 25/7bar compl.
27000045
18000031
Air pressure hose from reg. to hose reel compl.
27151
65055
CO-axial hose 3/4"+1/4" ass.
without parts 4 and 5.
70005
70006
Water hose ass. Impulse Gun - 510mm
Air pressure hose, ass. Impulse Gun
1
1
27000020
Hose reel (without hose)
metal sheet red painted
Hose reel complete up to 55 m hose
metal sheet red painted, crank handle left side
crank handle
drawn left
right mirrow image
IF-HR-300001-4
IF-HR-300001-4
IF-SL-300006-2
IF-SL-300006-5
IF-SL-300006-6
Grease nipple
Pivot for
Altern. 9
Air connection
Water connection 3/4
3
4. Hose reel, assembly (2)

Related product manuals