EasyManua.ls Logo

iLO IWF2706 - Page 30

Default Icon
60 pages
Print Icon
To Next Page IconTo Next Page
To Next Page IconTo Next Page
To Previous Page IconTo Previous Page
To Previous Page IconTo Previous Page
Loading...
7-5
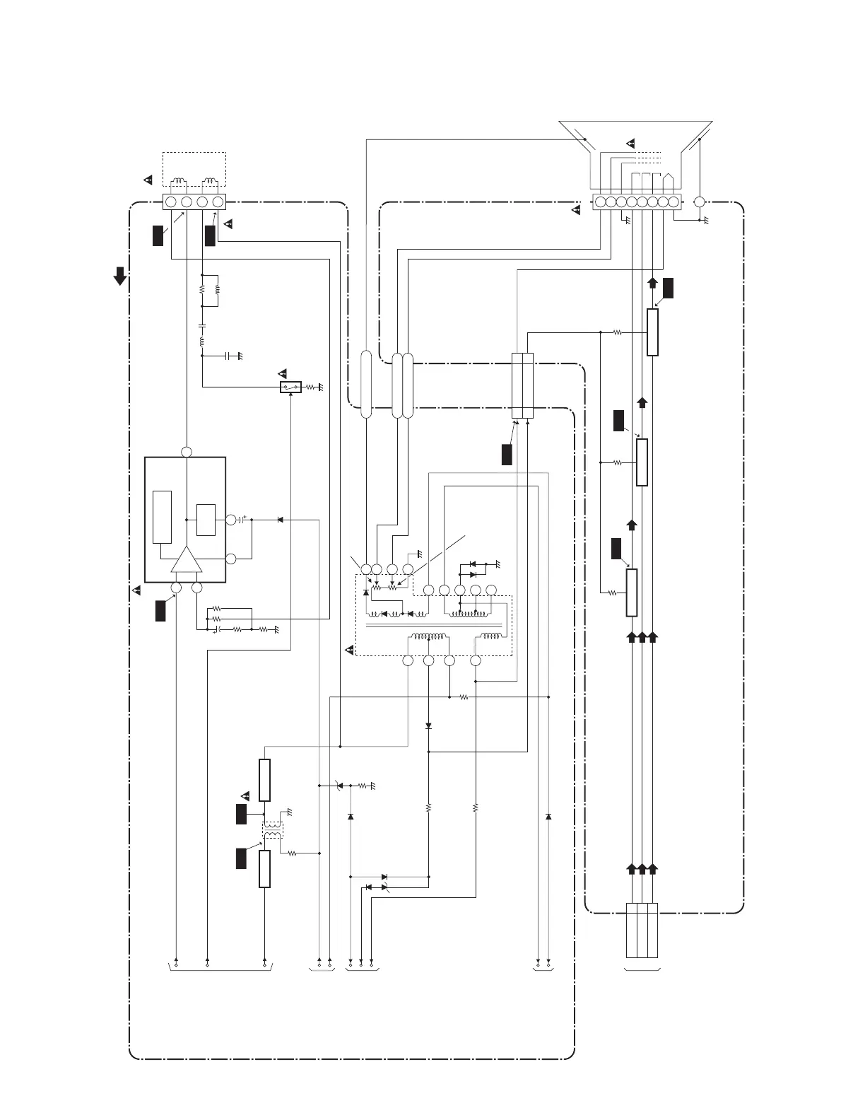
CRT/H.V. Block Diagram
L4803BLCRT
MAIN CBA
CRT CBA
7
4
8
6
11
10
9
RAMP-OUT
EW-OUT
H-DRIVE
GREEN AMP
BLUE AMP
Q572 Q571
Q552
T572
1
3
4
5
FBP-IN
ACL
V-
DRIVE
H-
DRIVE
DY551 D.Y.
IC551 (VERTICAL-DEFLECTION CONTROL)
ANODE
FOCUS
SCREEN
WH301B
R
G
B
HEATER
ANODE
GND
V501
CRT
FOCUS
SCREEN
GND
JK1501
CN1501
WH501BWH501A
VIDEO SIGNAL
CN571
H.OUTPUT
H.DRIVE
+B
PROTECT-3
DEF+B
AMP
7
1
6 3
PULSE
UP
THERMAL
PROTECTION
5
WF8 WF7
WF9
WF5
WF4
WF6
WF1
WF2
WF3
RED AMP
PROTECT-2
RED
3
GREEN 4
BLUE 5
HEATER33
+200V
11
PROTECT-1
TO POWER
SUPPLY BLOCK
TO
IF/VIDEO BLOCK
TO
IF/VIDEO BLOCK
TO
SYSTEM CONTROL
BLOCK
TO
IF/VIDEO BLOCK
WH301A
T571 F.B.T. FOCUS VR
SCREEN VR
4
3
1
5
S
F
HV
11
8
10
7
9
6
Q1511,
Q1512
Q1521,
Q1522
Q1531,
Q1532

Related product manuals