EasyManua.ls Logo

Immergas CARV2 - Automatic Functioning; Forced Automatic Functioning

Immergas CARV2
32 pages
Print Icon
To Next Page IconTo Next Page
To Next Page IconTo Next Page
To Previous Page IconTo Previous Page
To Previous Page IconTo Previous Page
Loading...
20
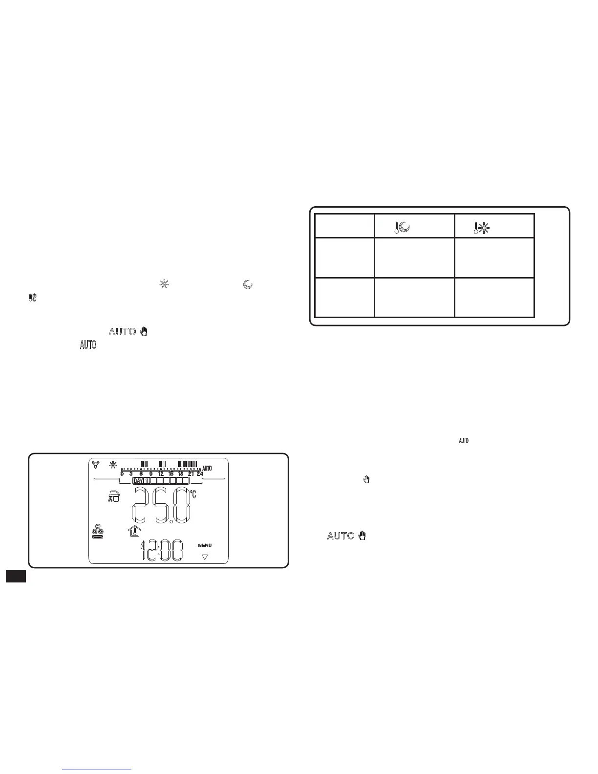
7.2 Automatic functioning.
The CAR
V2
allows automatic functioning, in which a
program manages the room temperature during the hours
of the day.
e desired room temperature can be adjusted onto two
independent levels: comfort ( ) and economy ( ) via the
button, whose distribution throughout the day or the
week is managed by hourly programming.
Press the button until the icon switches-on on
the display .
e CAR
V2
is factory-set with a standard program stated in
the table that follows. If this should not satisfy requirements,
it is possible to modify it as described in the chapter relative
to programming.
Note: the system is designed to function on comfort
and economy temperature levels depending on the hour
program set. erefore also during functioning in economy
temperature conditions, if the room temperature measured
is above that set, the chiller can switch-on.
7.3 Forced automatic functioning.
If in automatic functioning mode ( ) the room temperature
is modied by pressing the + / - buttons, the forced automatic
functioning mode is activated (displayed by the switch-on of
the ashing symbol). In this mode, the room temperature
will be regulated to the value set until the next switch-on or
switch-ophase of the automatic program set. e forced
automatic function can be interrupted by simply pressing
the button.
Days
40°C
25°C
Mon - Fri
(Day 1 - 5)
from 23 to 11
from 13 to 17
from 11 to 13
from 17 to 23
Sat - Sun
(Day 6 -7)
from 23 to 13 from 13 to 23
Fig. 20
Fig. 19

Other manuals for Immergas CARV2