EasyManua.ls Logo

Immergas NIKE Star - Page 22

Immergas NIKE Star
Print Icon
To Next Page IconTo Next Page
To Next Page IconTo Next Page
To Previous Page IconTo Previous Page
To Previous Page IconTo Previous Page
Loading...
20
ES
GR
PL
TR
CZ
HR
SL
HU
RU
RO
GB
PT
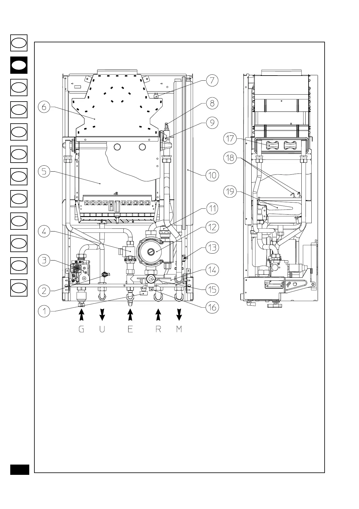
Legenda:
1 - Torneira de enchimento do sistema
2 - Sonda NTC de afinação da água para uso doméstico
3 - Válvula de gás
4 - Interruptor de fluxo da água para uso doméstico
5 - Câmara de combustão
6 - Conduto do fumo
7 - Termóstato de segurança da chaminé
8 - Sonda NTC de limite e regulação
9 - Termóstato de segurança contra superaquecimento
10 - Reservatório de expansão
11 - Válvula de expurgo do ar
12 - Circulador
13 - Pressóstato de água do circuito
14 - Colector
15 - Válvula de segurança de 3 bar
16 - Torneira para drenar o circuito
17 - Trocador de tipo rápido
18 - Eléctrodos de ignição e detecção
19 - Queimador
Componentes da caldeira Nike Star.

Related product manuals