EasyManua.ls Logo

Immergas NIKE Star - Page 98

Immergas NIKE Star
Print Icon
To Next Page IconTo Next Page
To Next Page IconTo Next Page
To Previous Page IconTo Previous Page
To Previous Page IconTo Previous Page
Loading...
96
ES
GR
PL
TR
CZ
HR
SL
HU
RU
RO
GB
PT
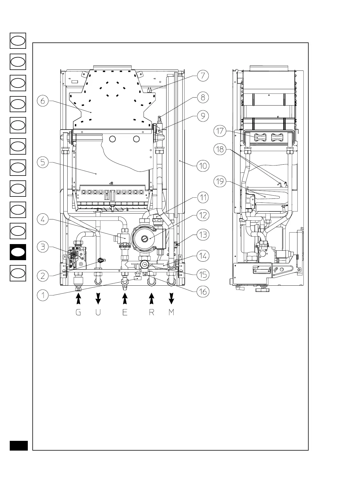
Legend™:
1 - Robinet de umplere instala∑ie
2 - Senzor NTC (Negative Temperature Coeficient) pentru
reglare circuit casnic
3 - Supap™ gaz
4 - •ntrerup™tor debit uz casnic
5 - Camer™ de combustie
6 - Hot™ gaze arse
7 - Termostat siguran∑™ ∑eav™ de fum
8 - Senzor reglare ≥i limitare NTC
9 - Termostat siguran∑™ supra¶nc™lzire
10 - Vas de expansiune
11 - Supap™ evacuare aer
12 - Pomp™ de recirculare
13 - Presostat ap™ instala∑ie
14 - Colector
15 - Supap™ de siguran∑™ 3 bar
16 - Robinet de golire instala∑ie
17 - Schimb™tor de tip rapid
18 - Bujii de aprindere/detectare
19 - Arz™tor
P™r∑ile componente ale boilerului Nike Star.

Related product manuals