EasyManua.ls Logo

Immergas VICTRIX 50 - Example Single Boiler Installation Diagram

Immergas VICTRIX 50
48 pages
Print Icon
To Next Page IconTo Next Page
To Next Page IconTo Next Page
To Previous Page IconTo Previous Page
To Previous Page IconTo Previous Page
Loading...
41
STV50 ed 09/08 VICTRIX 50 Rev. 002
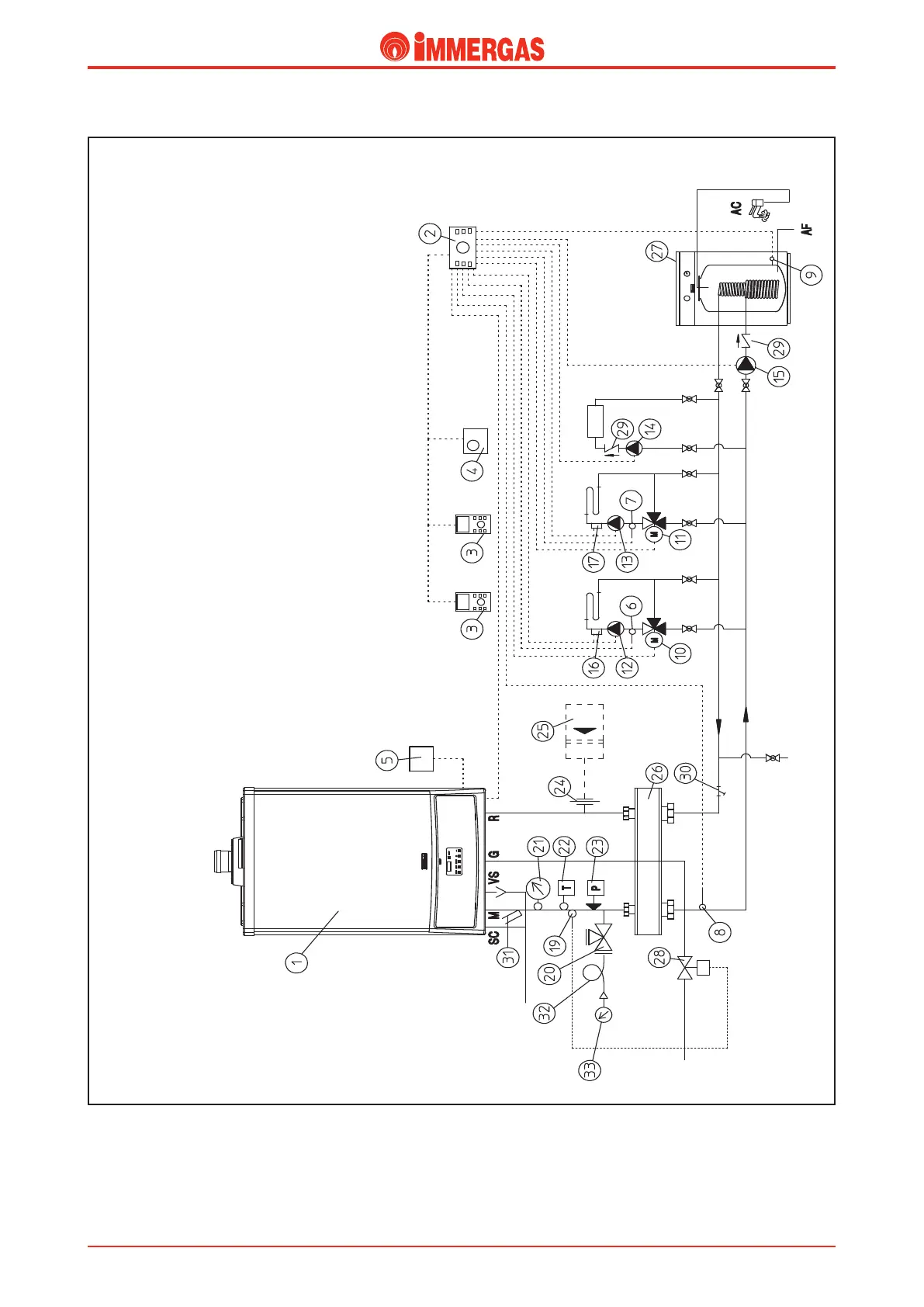
Example of a single VICTRIX 50 installation.
Legend:
1 - VICTRIX 50 generator
2 - Cascade and zone regulator
3 - Zone regulator
4 - Modulating room thermostat
5 - External probe
6 - No.1 zone temperature probe 1 (CMI-1)
7 - No.2 zone temperature probe 2 (CMI-2)
8 - Shared ow probe
9 - Water tank temperature probe
10 - No.1 Zone mixing valve (CMI-1)
11 - No.2 Zone mixing valve (CMI-2)
12 - No.1 Zone central heating circuit pump (CMI-1)
13 - No.2 Zone central heating circuit pump (CMI-2)
14 - No.3 zone direct circuit pump (HC)
15 - Water tank supply pump
16 - No.1 zone safety thermostat (CMI-1)
17 - No.2 zone safety thermostat (CMI-2)
19 - Fuel intercepting valve bulb
20 - ISPESL approved cock equipped with pressure gauge
21 - ISPESL approved thermometer
22 - ISPESL approved manual reset thermostat
23 - ISPESL approved manual reset pressure switch
24 - Expansion vessel coupling
25 - Expansion vessel
26 - Manifold/mixing device
27 - External water tank
28 - Fuel on-o valve
29 - One-way valve
30 - Sludge collecting system lter
31 - ermometer holding pocket
32 - Water hammer reducing loop
33 - ISPESL approved manometer
e above example refers to a boiler equipped with an ISPESL
safety kit and a distribution manifold. e system consists of
two, low temperature mixed zones, a high temperature zone
and a storage tank for the production of domestic hot water.
e system is controlled by a zones and cascade regulator (2)
that controls the storage tank directly, two zone managers (3)
that control the two low-temperature zones and a modula-
ting room thermostat (4) that controls the high temperature
zone.
ZONE 1
(MC 1)
ZONE 2
(MC 2)
ZONE 3
(HC)
Technical Documentation
Technical Documentation

Other manuals for Immergas VICTRIX 50

Related product manuals