EasyManua.ls Logo

Immergas VICTRIX PRO V2 - Page 8

Immergas VICTRIX PRO V2
12 pages
Print Icon
To Next Page IconTo Next Page
To Next Page IconTo Next Page
To Previous Page IconTo Previous Page
To Previous Page IconTo Previous Page
Loading...
13
14
IE
300
G 1 1/2"
G 1 1/2"
34530070
715
1315
59
851
220
499
5A
G 1 1/2"
627
220
G 1 1/2"
300
57.5
1098
1561
105 390 345
840
5B
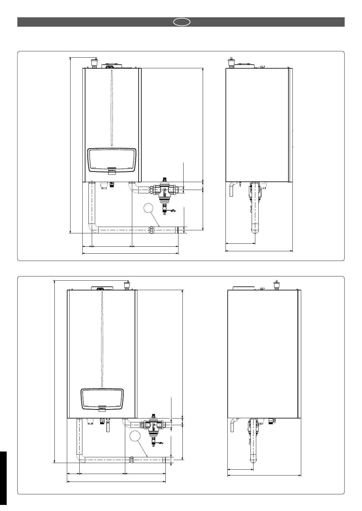
Mounting dimensions of dirt separator kit for Victrix Pro 100-120-150-180 V2 (right hydraulic connection).
ATTENTION: e following installation is not valid for the Italian market.
Mounting dimensions of dirt separator kit for Victrix Pro 35-55-80 V2 (right hydraulic connection).
STD.010229/000

Other manuals for Immergas VICTRIX PRO V2

Related product manuals