EasyManua.ls Logo

inform PDSP31010 - Page 15

inform PDSP31010
60 pages
Print Icon
To Next Page IconTo Next Page
To Next Page IconTo Next Page
To Previous Page IconTo Previous Page
To Previous Page IconTo Previous Page
Loading...
10
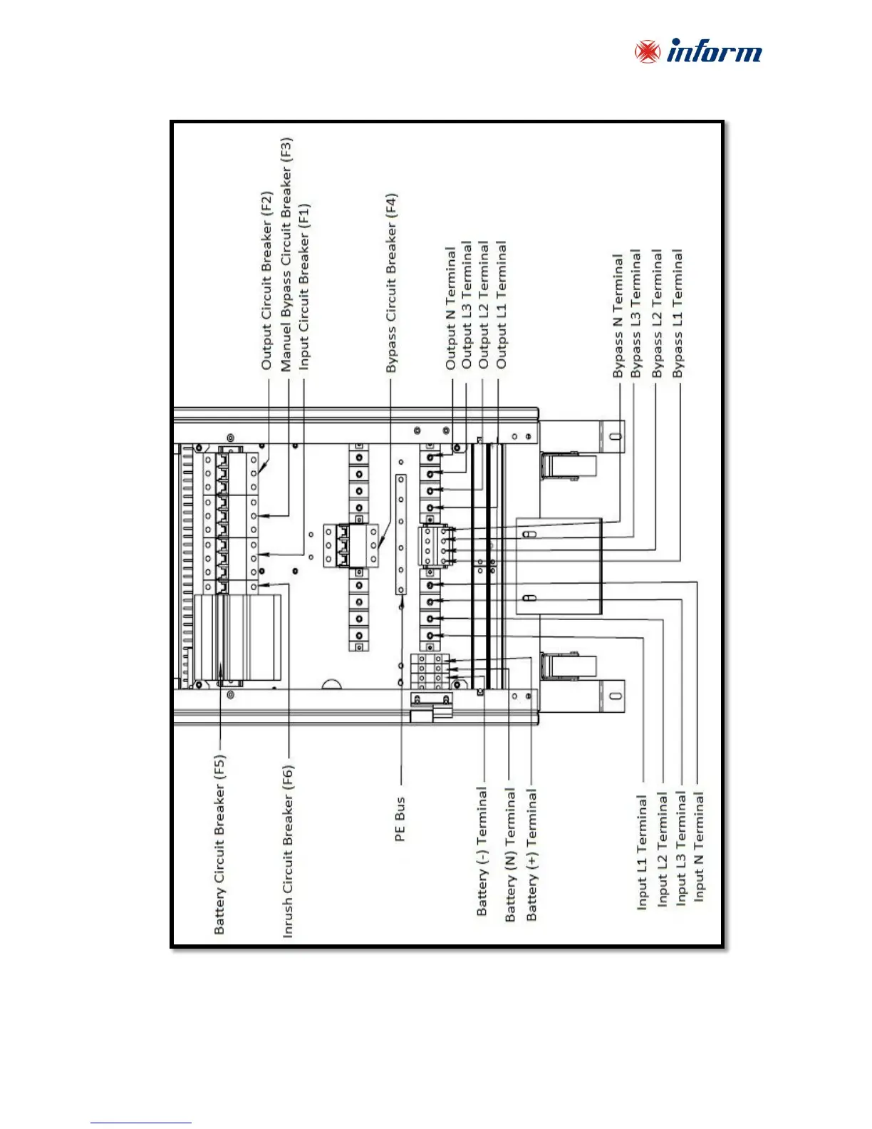
10-15-20-30kVA Terminal Connections
* Separate Bypass Terminal ( Bypass L1, L2, L3, N ) version is optional.
** For 3Phase Input - 1Phase Output UPS; Output L1-N Terminals are used.

Related product manuals