EasyManua.ls Logo

Intergas Combi Compact HRE 36/30 - 13 Electrical Connections; Electrical Wiring; NTC Resistances

Intergas Combi Compact HRE 36/30
56 pages
Print Icon
To Next Page IconTo Next Page
To Next Page IconTo Next Page
To Previous Page IconTo Previous Page
To Previous Page IconTo Previous Page
Loading...
Intergas Heating Ltd 50
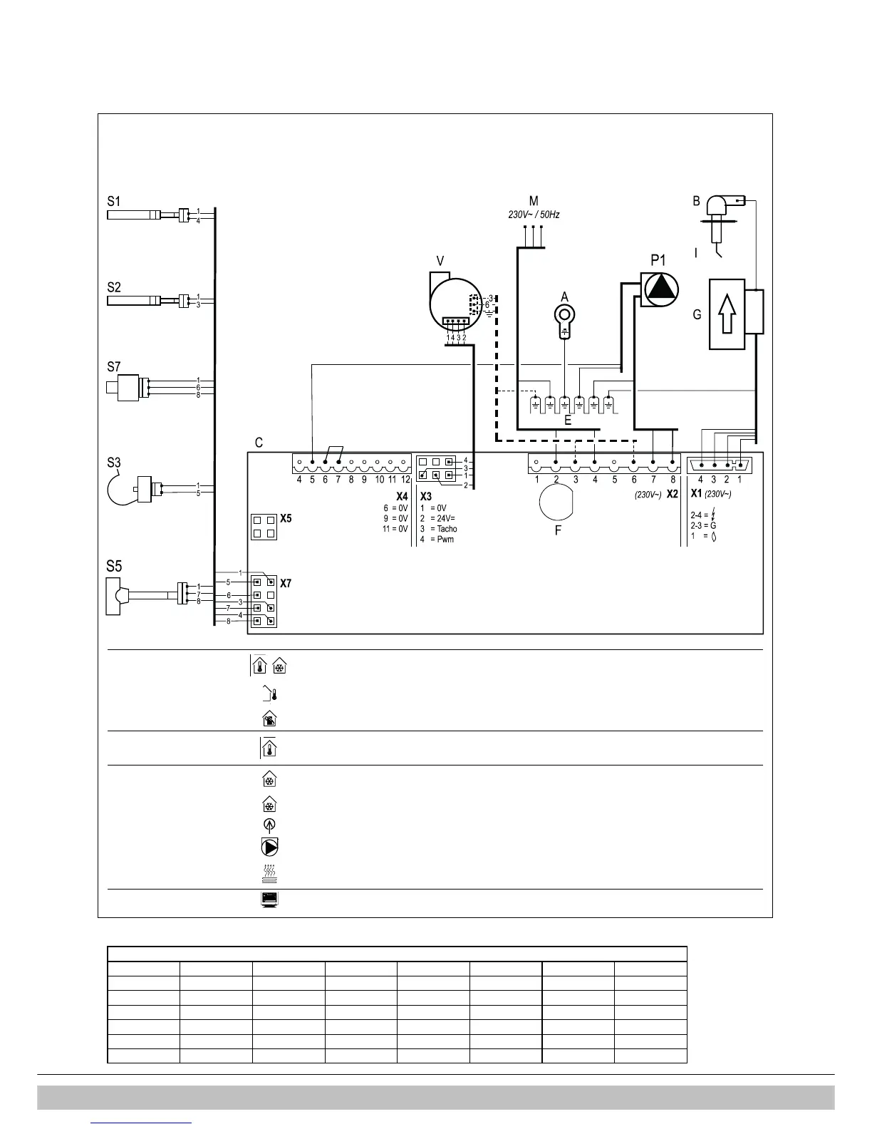
13 ELECTRICAL CONNECTIONS
13.1 Electrical wiring
A
Earth connections heat-exchanger
F
Fuse (2A T)
P1
CH pump
S3
DHW sensor
B
Spark plug cover
G
Gas valve + ignition unit
S5
Flow sensor DHW
C
Boiler controller
I
Ionisation-/ ignition probe
S1
Flow sensor
S7
CH water pressure sensor
E
Earth connections boiler controller
M
Main voltage
S2
Return sensor
V
Fan
3,15 AT
Connector X4
24V=
6-7
On/off room thermostat
(0,1A-24Vdc)
and/or frost thermostat
(remove connection 6-7)
8-9
Outdoor sensor
(12k ohm / 25°C)
11-12
OpenTherm thermostat
(remove connection 6-7)
Connector X2
230V
~
1-3
Room thermostat 230 AC
(1 = Switch live, 3 = Live(fused)
1-3
Frost thermostat 230 AC
(1 = Switch live, 3 = Live(fused)
3-6
Power supply (230 V) fan
2-4
Mains
(2 = Live (brown), 4 = Neutral (blue))
7-8
CV-pump
(8 = Live (brown), 7 = Neutral (blue)
3-5-6
Shut-off valve, floor heating
(3 = Live (brown), 5 = Switch (black), 6 = Neutral (blue) (VC4013 Honeywell
230V~)
Connector X5
Computer interface
13.2 NTC resistances
NTC 12kOhm
T [°C]
R[ohm]
T [°C]
R[ohm]
T [°C]
R[ohm]
T [°C]
R[ohm]
-
15
76020
15
18300
45
5522
75
1994
-
10
58880
20
14770
50
4609
80
1707
-
5
45950
25
12000
55
3863
85
1467
0
36130
30
9805
60
3253
90
1266
5
28600
35
8
055
65
2752
95
1096
10
22800
40
6653
70
2337
100
952

Table of Contents

Other manuals for Intergas Combi Compact HRE 36/30

Related product manuals