EasyManua.ls Logo

INVT GD20-011G-4-EU

INVT GD20-011G-4-EU
168 pages
To Next Page IconTo Next Page
To Next Page IconTo Next Page
To Previous Page IconTo Previous Page
To Previous Page IconTo Previous Page
Loading...
Goodrive20-EU series VFD Function parameters
78
Function
code
Name
Detailed instruction of parameters
Default
value
Modify
P08.32
FDT1 electrical
level detection
value
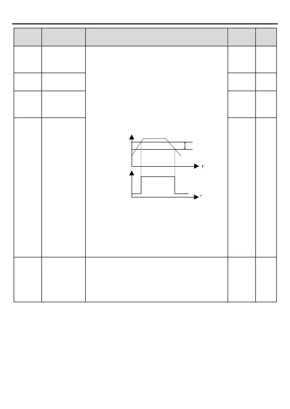
When the output frequency exceeds the
corresponding frequency of FDT electrical level,
the multi-function digital output terminals will
output the signal of "frequency level detect FDT"
until the output frequency decreases to a value
lower than (FDT electrical levelFDT retention
detection value) the corresponding frequency,
the signal is invalid. Below is the waveform
diagram:
Output frequency
FDT level
Y,
RO1, RO2
FDT lag
Setting range of P08.32: 0.00Hz P00.03
(the max. frequency)
Setting range of P08.33 and P08.35: 0.0
100.0%
Setting range of P08.34: 0.00Hz P00.03
(the max. frequency)
50.00H
z
P08.33
FDT1 retention
detection value
5.0%
P08.34
FDT2 electrical
level detection
value
50.00H
z
P08.35
FDT2 retention
detection value
5.0%
P08.36
Amplitude
value for
frequency
arrival
detection
When the output frequency is among the below
or above range of the set frequency, the
multi-function digital output terminal will output
the signal of "frequency arrival", see the diagram
below for detailed information:
0.00Hz

Table of Contents

Related product manuals