EasyManua.ls Logo

INVT GD20-037G-4 - P13 Group: Control Parameters of SM

INVT GD20-037G-4
140 pages
To Next Page IconTo Next Page
To Next Page IconTo Next Page
To Previous Page IconTo Previous Page
To Previous Page IconTo Previous Page
Loading...
Goodrive20 inverters Function Parameters
80
Function
code
Name Detailed instruction of parameters
Default
value
Modify
Setting range of P11.08:
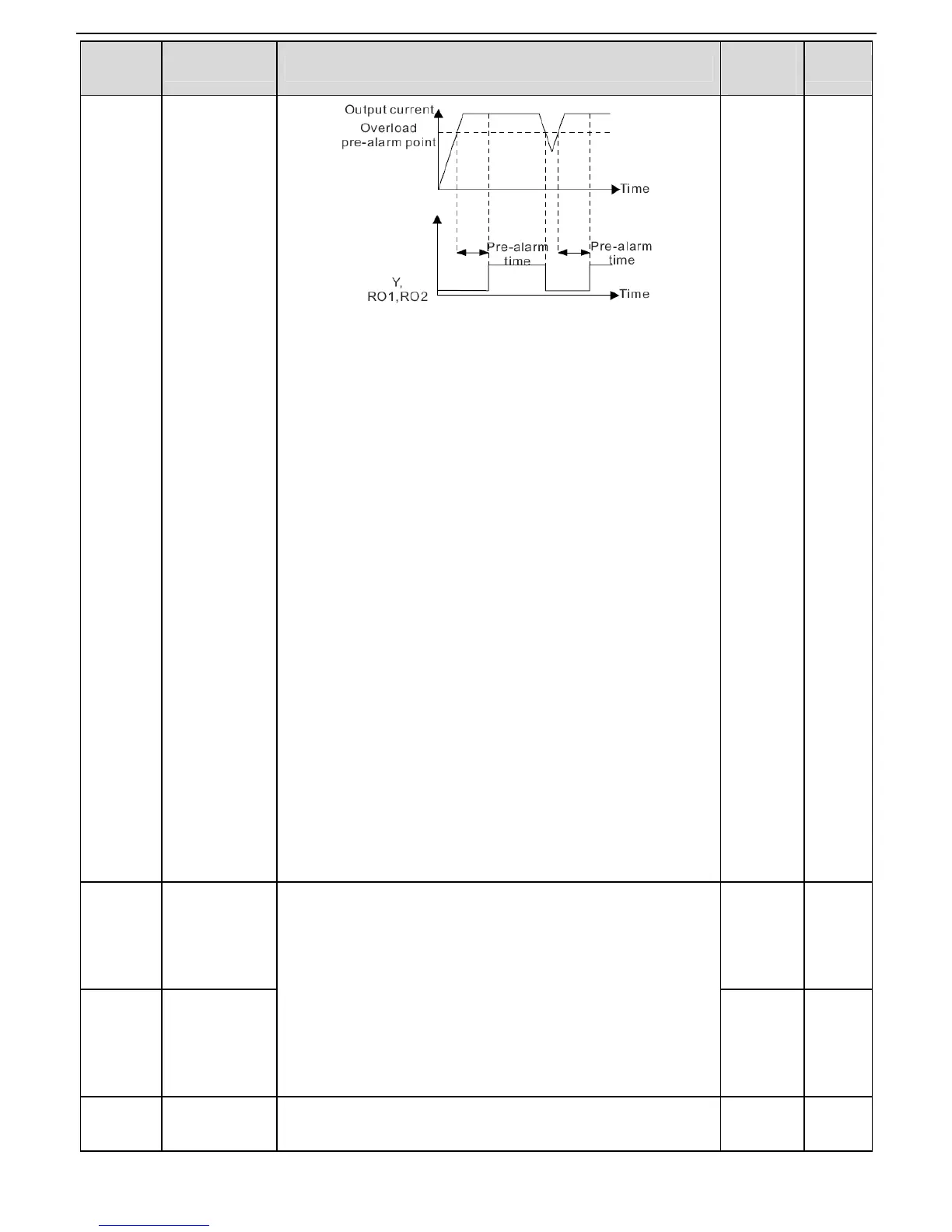
Enable and define the overload pre-alarm of the inverter or
the motor.
Setting range: 0x000~0x131
LED ones:
0:Overload pre-alarm of the motor, comply with the rated
current of the motor
1:Overload pre-alarm of the inverter, comply with the rated
current of the inverter
LED tens:
0:The inverter continues to work after underload pre-alarm
1:The inverter continues to work after underload pre-alarm
and the inverter stops to run after overload fault
2: The inverter continues to work after overload pre-alarm
and the inverter stops to run after underload fault
3. The inverter stops when overloading or underloading.
LED hundreds :
0:Detection all the time
1:Detection in constant running
Setting range of P11.09: P11.11~200%
Setting range of P11.10: 0.1~3600.0s
P11.11
Detection level
of the
underload
pre-alarm
If the inverter current or the output current is lower than
P11.11, and its lasting time is beyond P11.12, the inverter
will output underload pre-alarm.
Setting range of P11.11: 0~P11.09
Setting range of P11.12: 0.1~3600.0s
50%
P11.12
Detection time
of the
underload
pre-alarm
1.0s
P11.13
Output terminal
action selection
Select the action of fault output terminals on undervoltage
and fault reset.
0x00

Table of Contents

Related product manuals