EasyManua.ls Logo

INVT GD350-045G/055P-45-AS-B

INVT GD350-045G/055P-45-AS-B
372 pages
To Next Page IconTo Next Page
To Next Page IconTo Next Page
To Previous Page IconTo Previous Page
To Previous Page IconTo Previous Page
Loading...
Goodrive350 IP55 High-ingress Protection Series VFD Basic Operation Instructions
-106-
0
1
2
3
4
5
6
7
8
9
10
11
Keypad
AI1
PROFIBUS/CANopen/DeviceNet
Modbus/Modbus TCP
PID
Multi-step speed
Simple PLC
HDIA
AI3
AI2
Ethernet
Pulse train AB
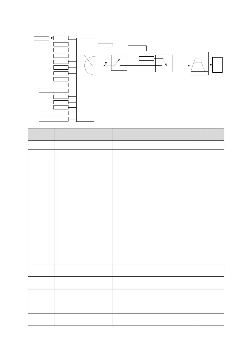
P00.06
(A frequency command
selection)
Frequency set by keypad
P00.10
P08.05
Amplitude of wobbling frequency
*
*
Maintain current
frequency
Set frequency
P00.11 acceleration time 1
P00.12 deceleration time 1
Wobbling
frequency
output
Terminal function 26
wobbling frequency
pause
Terminal function 27
Wobbling frequency reset
Valid
Invalid
Valid
Invalid
HDIB
EtherCAT/PROFINET/EtherNet IP
Programmable card
12
13
14
Function
code
Name
Description
Default
value
P00.03
Max. output frequency
P00.03400.00Hz
50.00Hz
P00.06
A frequency command
selection
0: Set via keypad
1: Set via AI1
2: Set via AI2
3: Set via AI3
4: Set via high speed pulse HDIA
5: Set via simple PLC program
6: Set via multi-step speed running
7: Set via PID control
8: Set via Modbus/Modbus TCP
communication
9: Set via PROFIBUS/CANopen/
DeviceNet communication
10: Set via Ethernet communication
11: Set via high speed pulse HDIB
12: Set via pulse train AB
13: Set via
EtherCAT/PROFITNET/Ethernet IP
communication
14: Set via PLC card
0
P00.11
Acceleration time 1
0.03600.0s
Depend on
model
P00.12
Deceleration time 1
0.03600.0s
Depend on
model
P05.01
P05.06
Digital input function
selection
26: Wobbling frequency pause (stop at
current frequency)
27: Wobbling frequency reset (revert to
center frequency)
/
P08.15
Amplitude of wobbling
frequency
0.0100.0% (relative to set frequency)
0.0%

Table of Contents

Related product manuals