EasyManua.ls Logo

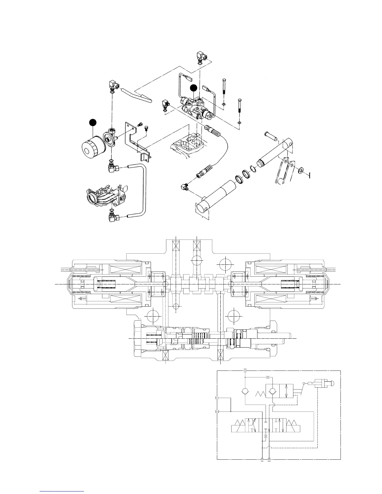
Iseki SGR17 - Solenoid Valve Assembly

Iseki SGR17
128 pages
Print Icon
To Next Page IconTo Next Page
To Next Page IconTo Next Page
To Previous Page IconTo Previous Page
To Previous Page IconTo Previous Page
Loading...
86
SERVICE MANUAL FOR SGR19 & SGR17
Fig. 6-6
2.6. SOLENOID VALVE ASSEMBLY
(K200-069-000-00)
Fig. 6-7
N1
N2
PT
C
ab
5
6

Table of Contents