EasyManua.ls Logo

ITRON 133 - Installation Dimensions; Fastening Torque Specifications

ITRON 133
52 pages
Go to English
Print Icon
To Next Page IconTo Next Page
To Next Page IconTo Next Page
To Previous Page IconTo Previous Page
To Previous Page IconTo Previous Page
Loading...
42
E
J
D
F
G
C1
H
C
A
K
B
X
Y
E
J
17 0
90
G
H
63
N
L
R
A
DN25
K
B
X
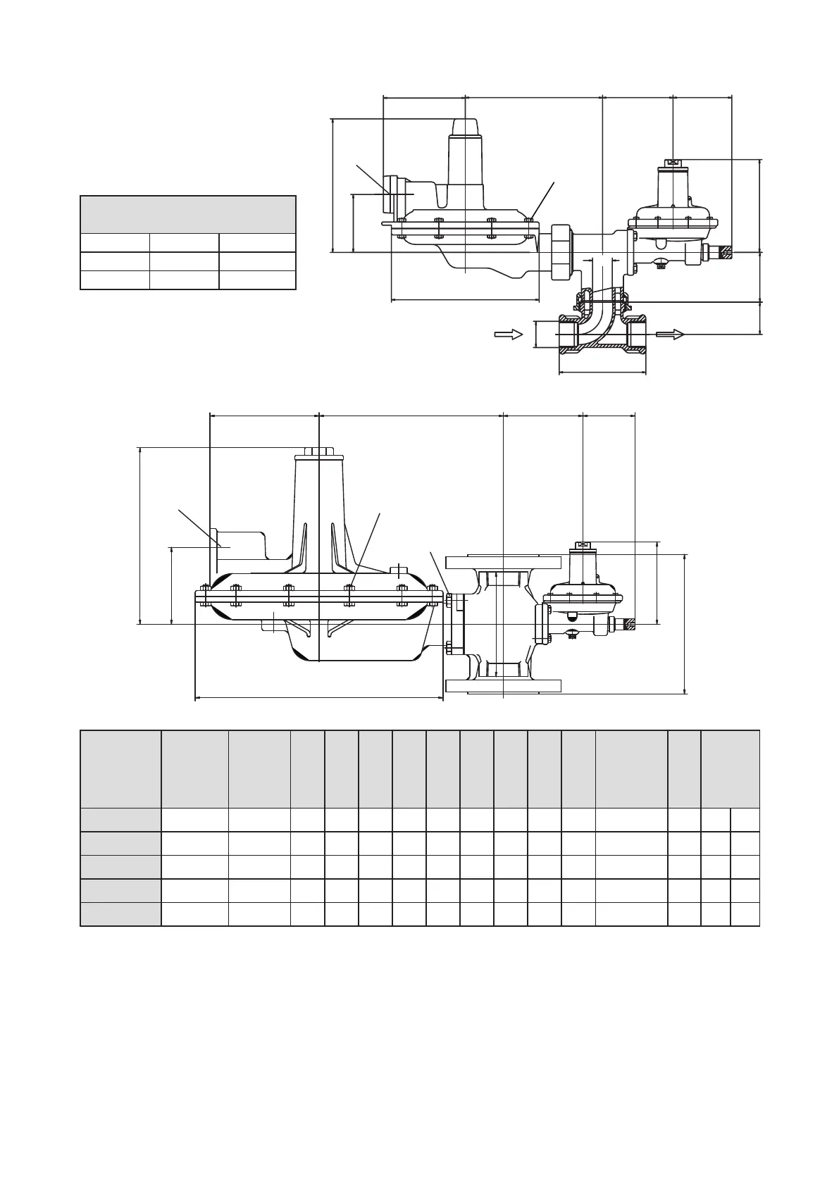
Einbaumaße / Dimensions
Max. Anzugsmomente / Torque of fastening
x) Schrauben am Membrangehäuse / Screws of diaphragm housing : max 10 Nm
y) Schrauben am Verbindungsflansch, Membrangehäuse zu Ventilkörper /
Screws of the connection flange, diaphragm housing to body : max 13 Nm.
(1) Gehäuse mit Gewindeanschluss / Body with thread connection
(2) Gehäuse mit Flanschanschluss / Body with flange connection
Type 133-E
Type 133/233/244
42
Tabelle für Anschlusstück /
Table of Connection piece
R
L N
Rp 1
110 41
Rp 1 1/2 140 50
Ausführung/
Version
Type
Gewinde-
Größe/
Thread-
Dimension
Flansch/
Flange
ØA B C1
(1)
C
(2)
D E F G H J
Atmungs-
Anschluss/
Breathering-
Connection
K ca. kg
(1) (2)
133-
3/4“ / 1”
DN 25 190 170 100 160 170 100 100 60 120 Rp 3/4“ 74 4 6
233-12
1 1/2”
DN 40 350 250 150 200 260 155 110 60 120 Rp 1” 110 11 15
233/244-12
- DN 50 350 250
- 200 260 155 110 60 120 Rp 1” 110 - 16
233-8
1 1/2” DN 40 260 250 150 200 220 125
110 60 120 Rp 1” 105 9 13
233/244-8
- DN 50 260 250 - 200 220 125 110 60 120 Rp 1”
105 - 14

Table of Contents

Related product manuals