EasyManua.ls Logo

Jack SUPER JACK SJ125 - Locating the Furnace; Clearances to Combustibles

Jack SUPER JACK SJ125
56 pages
Print Icon
To Next Page IconTo Next Page
To Next Page IconTo Next Page
To Previous Page IconTo Previous Page
To Previous Page IconTo Previous Page
Loading...
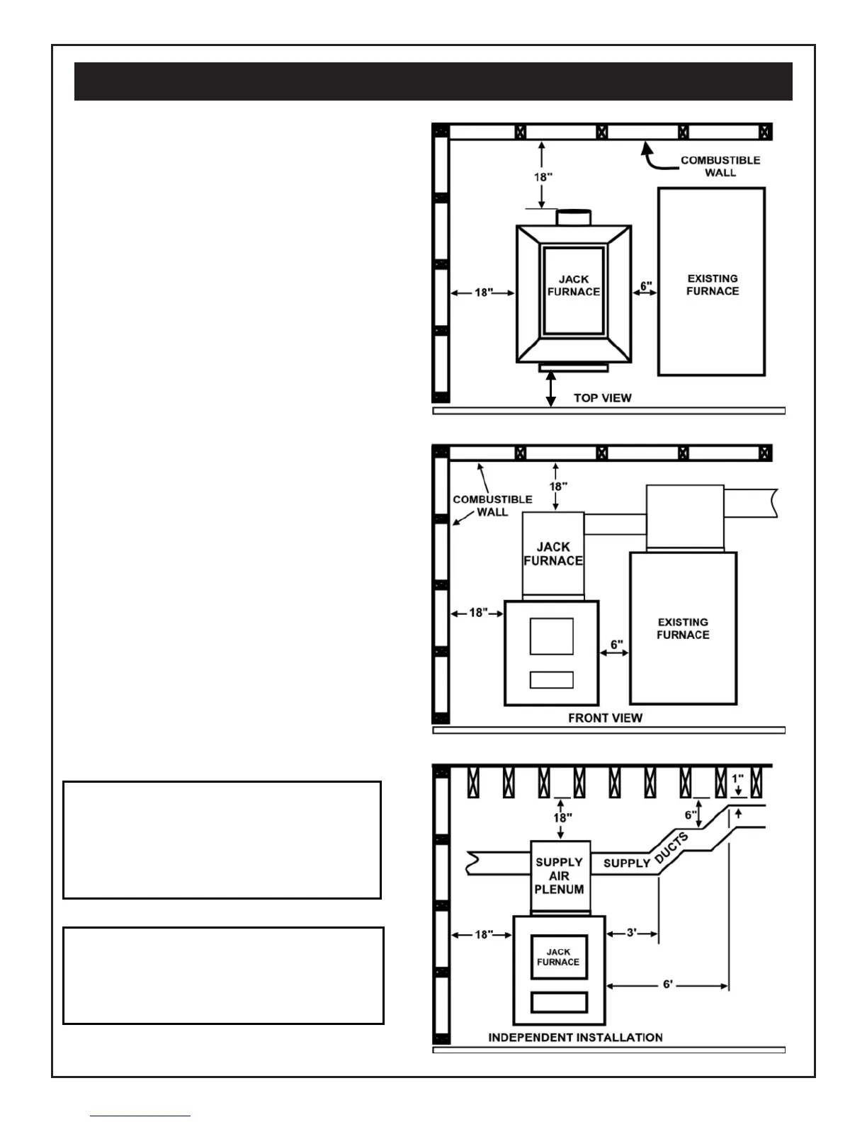
LOCATING THE FURNACE
Locate the furnace as close to the chimney or
flue as possible. The furnace should be located
no more than 10 feet away from the chimney.
You will need 1” rise per linear foot of pipe as a
minimum.
The furnace should be located with respect to
building construction and the placement of other
equipment. Consideration should be given to
sufficient clearance. Sufficient clearance
provides adequate access for the cleaning of
surfaces; the replacement of blowers, motors,
controls and the chimney connector; and for the
lubrication and servicing of moving parts.
Making sure that sufficient air supply for
ventilation and proper combustion are piped into
the room where the furnace is located.
REDUCED CLEARANCES
Up to 50% less clearance between combustible
walls and chimney connector to furnace and
ducts is allowed if insulated according to NFPA
Standard 90B or your local building code. This
copyrighted book is available from the National
Fire Protection Association, Inc., PO Box 9101,
Quincy, MA 02269-9101.
It is a mistake to assume that sheet metal,
masonry, or asbestos-like board placed directly
against a wall protects it. Materials installed in
this manner give very little protection. These
materials are good conductors, so they will be
almost as hot on their back-side as well as on
their exposed side. Therefore, the combustible
wall behind it is still a fire hazard.
NOTE:
It is recommended that a 2” non-combustible
raised pad be used for the furnace. This will
prevent moisture from getting under the furnace
and causing corrosion.
1” CLEARANCE TO COMBUSTIBLES
BEYOND 6’ TO A POINT WHERE
THERE IS A CHANGE IN DIRECTION OF
90 DEGREES OR MORE.
48”
Plan Your Installation
17