EasyManua.ls Logo

Jacobsen AR 250 - Page 70

Jacobsen AR 250
154 pages
Print Icon
To Next Page IconTo Next Page
To Next Page IconTo Next Page
To Previous Page IconTo Previous Page
To Previous Page IconTo Previous Page
Loading...
GB-NL-F-64
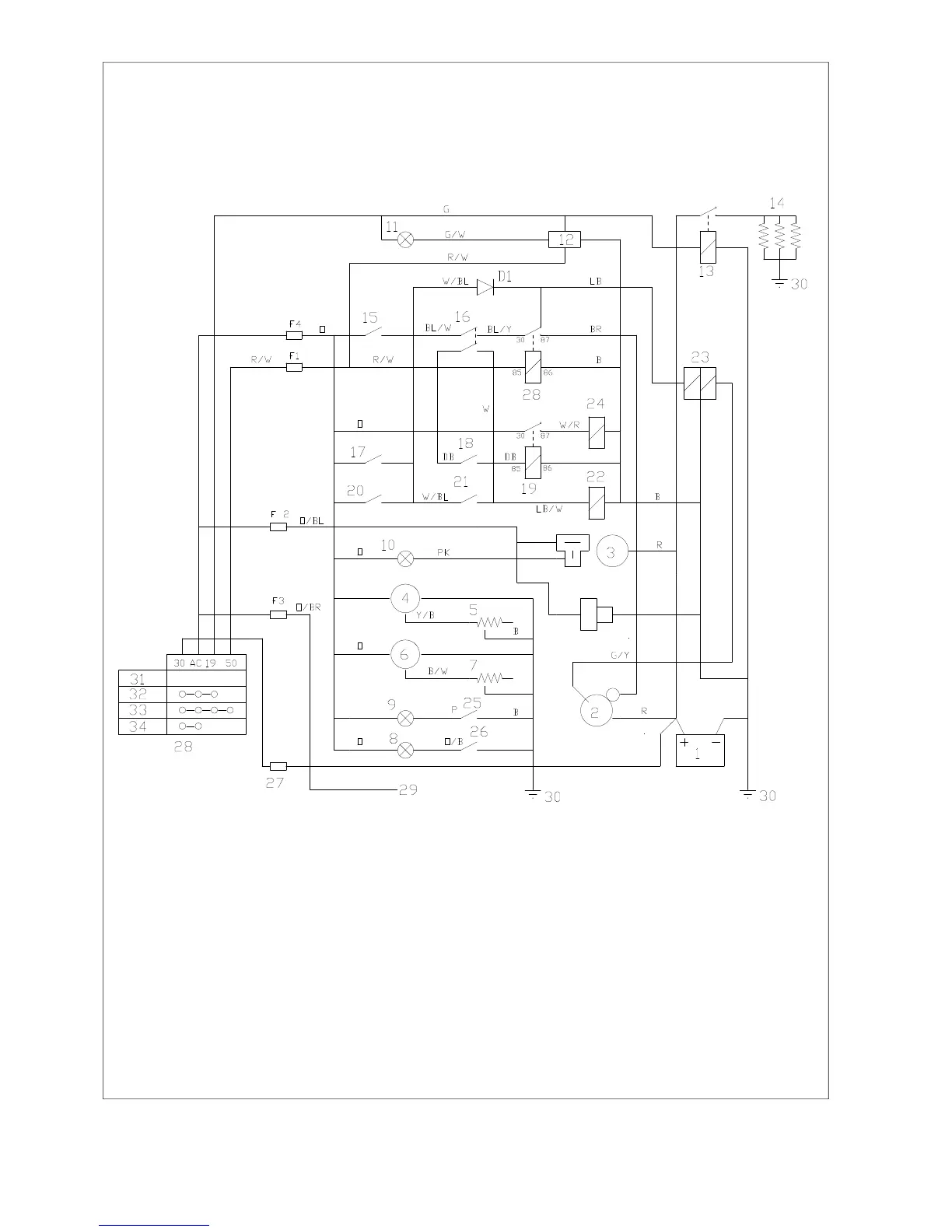
Fig.42