EasyManua.ls Logo

Jacuzzi J-135 - Export 50 Hz J-115 and J-125 Models

Jacuzzi J-135
60 pages
Print Icon
To Next Page IconTo Next Page
To Next Page IconTo Next Page
To Previous Page IconTo Previous Page
To Previous Page IconTo Previous Page
Loading...
J-100
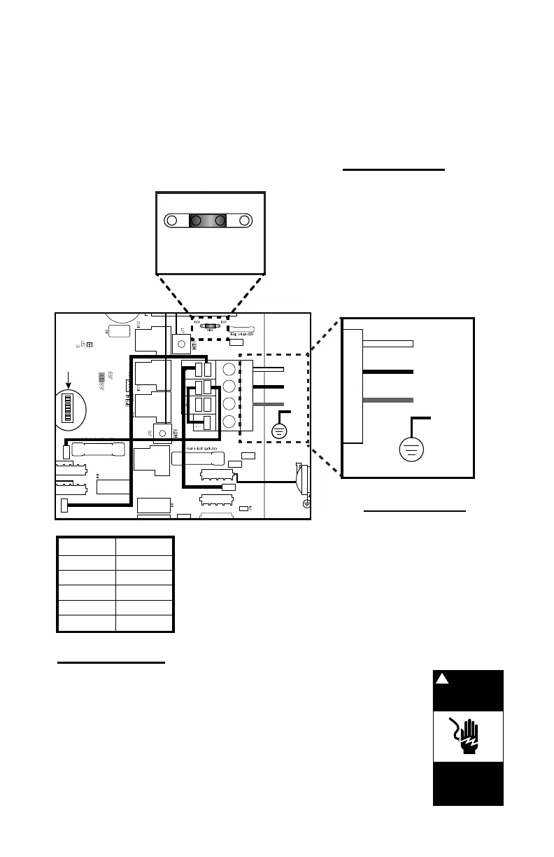
16.3 North American J-115 and J-125 Convertible Power Models
(For a 4-wire 240V 60 Hz connection)
This wiring diagram is used for all North American 240V 60 Hz
convertible power models. Dedicated 240V models must be permanently
connected (hard-wired) to the power supply.
Note: 240 VAC 4-wire connection enhances heater output from 1kW to
4kW.
DANGER
Turn power off
before servicing. This
task should only be
performed by a quali-
fied technician.
!
RISK OF SHOCK OR
ELECTROCUTION!
Location J22
remove one logic
jumper and place
the other across the
240V pins, as shown
TB1 terminal
White wire must
be connected to
location D and a
second hot wire
connected (RED),
as shown
Jumper wires
The sequence of the
jumper wires must be
changed, as shown
PUMP 1
A
B
C
D
CIRC PUMP
OZONE
P1 2SPD
UV
A/V
5AT~250V
WHT
BLK
RED
TB1
G-GRN
CIRC PUMP
L-BLK
N-WHT
G-GRN
WHT
BLK
4.0KW
G-GRN
G-GRN
See Section 17.0
for Dip Switch
Settings
240 VAC, 20A/31A
4-WIRE CONNECTION
60HZ 1-PHASE SERVICE
30A (PMP 1)
30A (PMP 2)
J33
J36
J53
J41
J46
J47
J51
J59
J38
J44
J49
J22
F4
J27
J34
J29
F6
S1
F2
F3
J35
J37
J73
J72
4A
5A
J22
120V 120V
240V
A
B
C
D
WHT
BLK
RED
TB1
G-GRN
FROM TO
J37 J38
J51 J46
J59 J53
J33 J47
J22
1 jumper
1 2 3 4 5 6 7 8 9 10
48

Table of Contents

Related product manuals