EasyManua.ls Logo

Jacuzzi J-375 - North American Convertible Models (4-wire 240 V 60 Hz)

Jacuzzi J-375
80 pages
Print Icon
To Next Page IconTo Next Page
To Next Page IconTo Next Page
To Previous Page IconTo Previous Page
To Previous Page IconTo Previous Page
Loading...
58
J-300
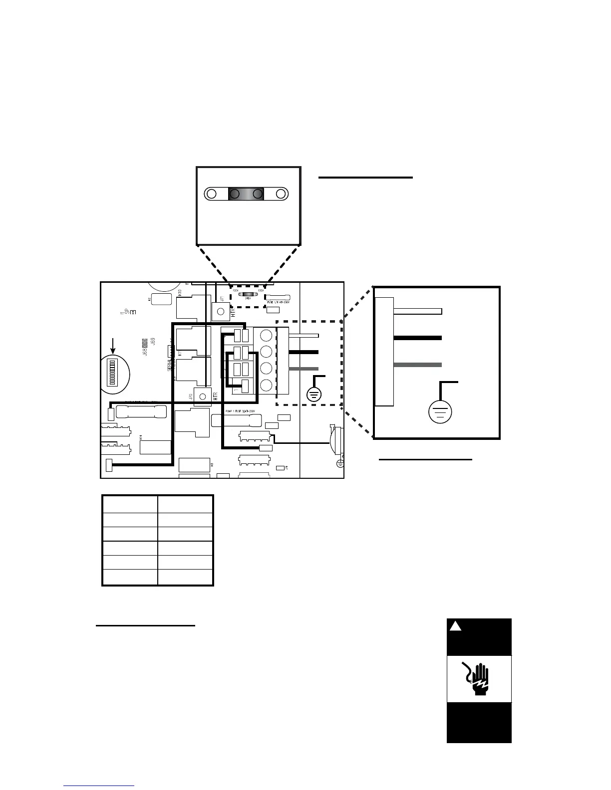
16.3 North American J-315 and J-325 Convertible Power Models
(For a 4-wire 240V 60 Hz connection)
This wiring diagram is used for all North American 240V 60 Hz
convertible power models. Dedicated 240V models must be permanently
connected (hard-wired) to the power supply.
Note: 240 VAC 4-wire connection enhances heater output from 1kW to
4kW.
DANGER
Turn power off
before servicing. This
task should only be
performed by a quali-
fied technician.
!
RISK OF SHOCK OR
ELECTROCUTION!
PUMP 1
CIRC PUMP
5AT~250V
CIRC PUMP
L-BLK
N-WHT
G-GRN
WHT
BLK
4.0KW
G-GRN
G-GRN
See Section 17.0
for Dip Switch
Settings
240 VAC, 20A/31A
4-WIRE CONNECTION
60HZ 1-PHASE SERVICE
J29
S1
F3
J73
J72
5A
Location J22
remove one logic
jumper and place
the other across the
240V pins, as shown
TB1 terminal
White wire must
be connected to
location D and
a second hot
wire connected
(RED), as shown
Jumper wires
The sequence of the
jumper wires must be
changed, as shown

Table of Contents

Related product manuals