EasyManua.ls Logo

Jay-Lor 3650 - Page 25

Default Icon
49 pages
Print Icon
To Next Page IconTo Next Page
To Next Page IconTo Next Page
To Previous Page IconTo Previous Page
To Previous Page IconTo Previous Page
Loading...
JAY
LOR
Operator’s Manual - 24 - Trailer Units - Model 3650
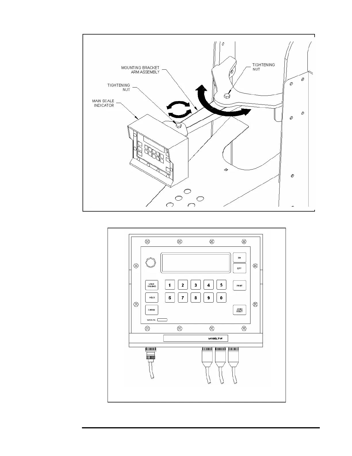
Figure 6 - Adjustment of Scale Mounting Bracket Arm Assembly.
Figure 7 – Typical Scale Indicator and Connections.
Power Cord Weighbar Cords (x3)

Related product manuals